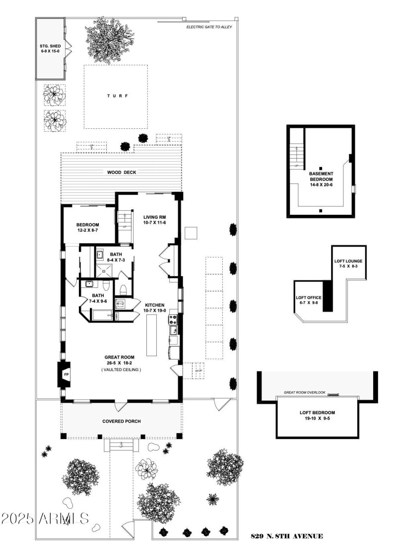
Cleverly nicknamed ''The Loft Haus'' this 100+ year old bungalow has been reimagined with modern features & a gallery vibe that makes it unlike any other home you've seen. Located steps from Roosevelt Row within the Arts District, you'll enjoy a curated design that feels like a loft but within a single family home. As you arrive, you'll love the classic curb appeal with huge front porch. Inside you'll discover hardwood floors, designer fixtures & finishes, 16 ft ceilings offering two separate loft living areas & an open concept floor plan that flows perfectly with a basement below. In the backyard you'll enjoy amazing outdoor living with incredible views of Downtown & electric gated parking. Walking distance to all your favorite restaurants, events & activities - This home is a lifestyle!
Heading south on 7th Ave, Turn right onto Roosevelt and then left onto 8th Ave. Home is on the left side.
Dwelling Type: Residential
Subdivision: KENSINGTON PLACE
Year Built: 1912, County: N/A
Heading south on 7th Ave, Turn right onto Roosevelt and then left onto 8th Ave. Home is on the left side.
Listing is courtesy of HomeSmart
Sign in to your account to continue