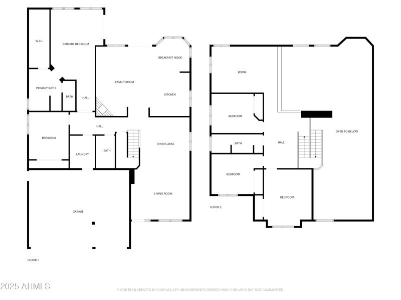
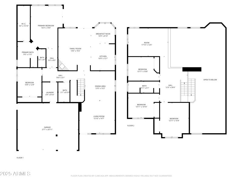
Welcome to your next home in the heart of San Tan Valley! This spacious property combines comfort, style, and functionality—perfect for families or anyone looking to enjoy Arizona living with modern conveniences. First floor primary suite along with another guest room on the first floor. PROPERTY FEATURES:
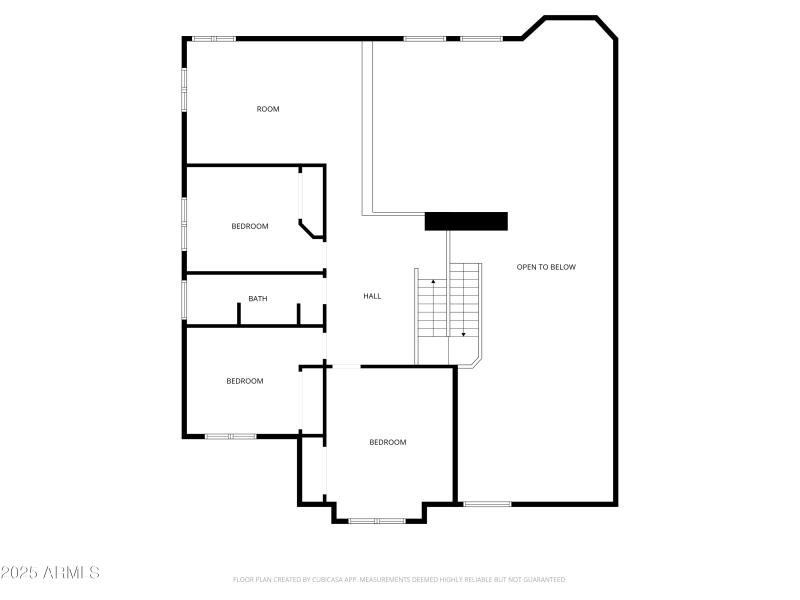
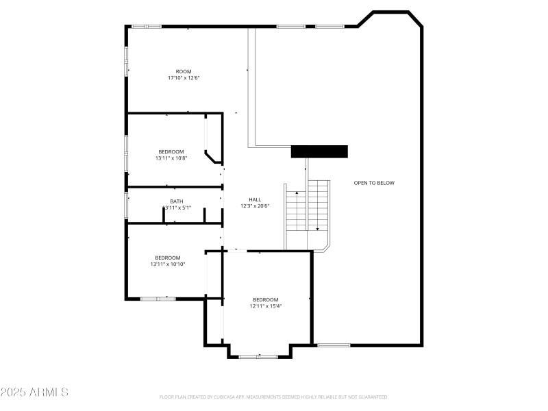
Spacious Layout: Open-concept design with a bright and airy living area, seamlessly connecting the family room, dining space, and kitchenideal for entertaining and everyday living. Loft upstairs looking down on living and kitchen area.
Gourmet Kitchen: Stainless steel appliances, a large island with bar seating, and offering plenty of storage for all your culinary needs.
Primary Suite Retreat: Relax in the oversized primary suite on the first floor complete with a spa-like bathroom featuring a large walk-in shower and tub, double sinks, a private toilet, and an oversized walk-in closet with built-in shelving.
Additional Bedrooms: One guest bedroom downstairs and three additional bedrooms upstairs offer flexibility for family, guests, or a home office, all designed with comfort and functionality in mind.
Attached Three-Car Garage: Spacious three-car garage with direct entry for secure parking and additional storage space.
In-Unit Laundry: Full-sized washer and dryer included for your convenience.
Outdoors: Enjoy a low-maintenance backyard with a covered patioperfect for barbecues, entertaining, or simply relaxing. The lot offers plenty of privacy with no rear neighbors.
Community & Location Perks:
Highly Desirable Location: Nestled in a quiet and family-friendly neighborhood, this home is near scenic parks, top-rated schools, and local attractions.
Easy Commute: Convenient access to Hunt Highway and US-60 makes commuting to Queen Creek, Gilbert, Chandler, and the greater Phoenix area simple and stress-free.
Nearby Shopping, Recreation & Dining: Minutes from Queen Creek Marketplace, Schnepf Farms, and local golf courses. Residents can also enjoy a variety of restaurants, shops, and entertainment options close by.
PET RULE:
Cats: Yes
Dogs: Yes
IMPORTANT THINGS TO KNOW :
*Application Fee: $50 per applicant 18 or older. (Please review Keyrenter's Application Criteria prior to applying, as this is non-refundable.)
*Applications can't be screened until all applicants send in all their documents.
*Applications are screened first come first serve.
Appliances: Refrigerator, Stove, Oven, Microwave, Dishwasher, Washer and Dryer.
LEASE LENGTH: 12-month Minimum
SPECIAL LEASE PROVISIONS: If not specified here, will be listed in lease agreement.
APPLICATION TURNAROUND TIME: 24 to 72 business hours, if all required documents submitted by apply persons over the age of 18 years old.
ADDITIONAL ONE TIME FEES AND DEPOSITS (details in lease agreement):
$50 Application Fee per applicant 18 or older (Nonrefundable)
Security Deposit: Equal to one month's rent (Refundable)
$150 Lease Initiation Fee (Nonrefundable)
$200 Cleaning Fee (Nonrefundable)
$250 Pet Security Deposit (Refundable) - if applicable
$250 Pet Fee (Nonrefundable)
Pets (if allowed): Pet application fee of $30 per pet (nonrefundable) charged by 3rd party vendor PetScreening. All pets & animals MUST be registered at time of application.
ADDITIONAL MONTHLY FEES:
$15 Monthly Residential Administration (MRA) Fee
$50 Pet Rent (First Pet) / Month. $25 / Month Additional Pets - if applicable
$45.95/month Resident Benefits Package (RBP) - All Keyrenter Gilbert Property Management residents are enrolled in the RBP, which includes liability insurance (if you use your own insurance the cost goes down by $11.95/month), credit building to help boost the resident's credit score with timely rent payments, up to $1M Identity Theft Protection, HVAC air filter delivery, move-in concierge service making utility connection and home service setup a breeze during your move-in, our best-in-class resident rewards program, local discounts, and much more! More details upon application.
*Other terms and conditions may apply. All information including advertised rent and other charges are deemed reliable but not guaranteed and are subject to change.
Check the listing at Keyrenter Gilbert website for details.
Heading South on Hunt HWY take a right onto N Mountain Vista Blvd. Take a right onto W Belle Ave. Turn left onto N Barbara Dr. Home is immediately on right.
Dwelling Type: Residential Lease
Subdivision: SAN TAN HEIGHTS PARCEL J
Year Built: 2004, County: N/A
Heading South on Hunt HWY take a right onto N Mountain Vista Blvd. Take a right onto W Belle Ave. Turn left onto N Barbara Dr. Home is immediately on right.
Listing is courtesy of Keyrenter Gilbert Property Management