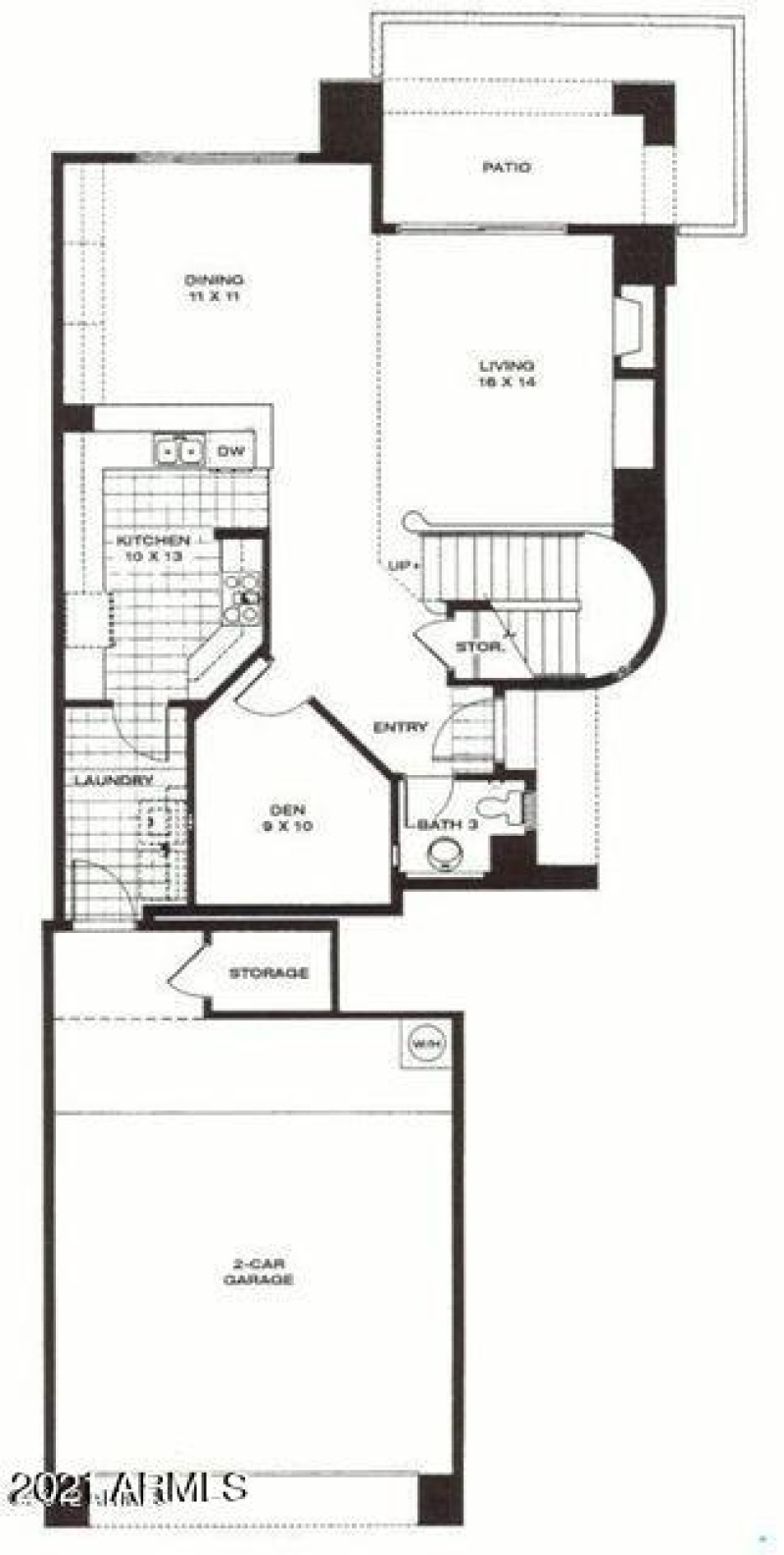
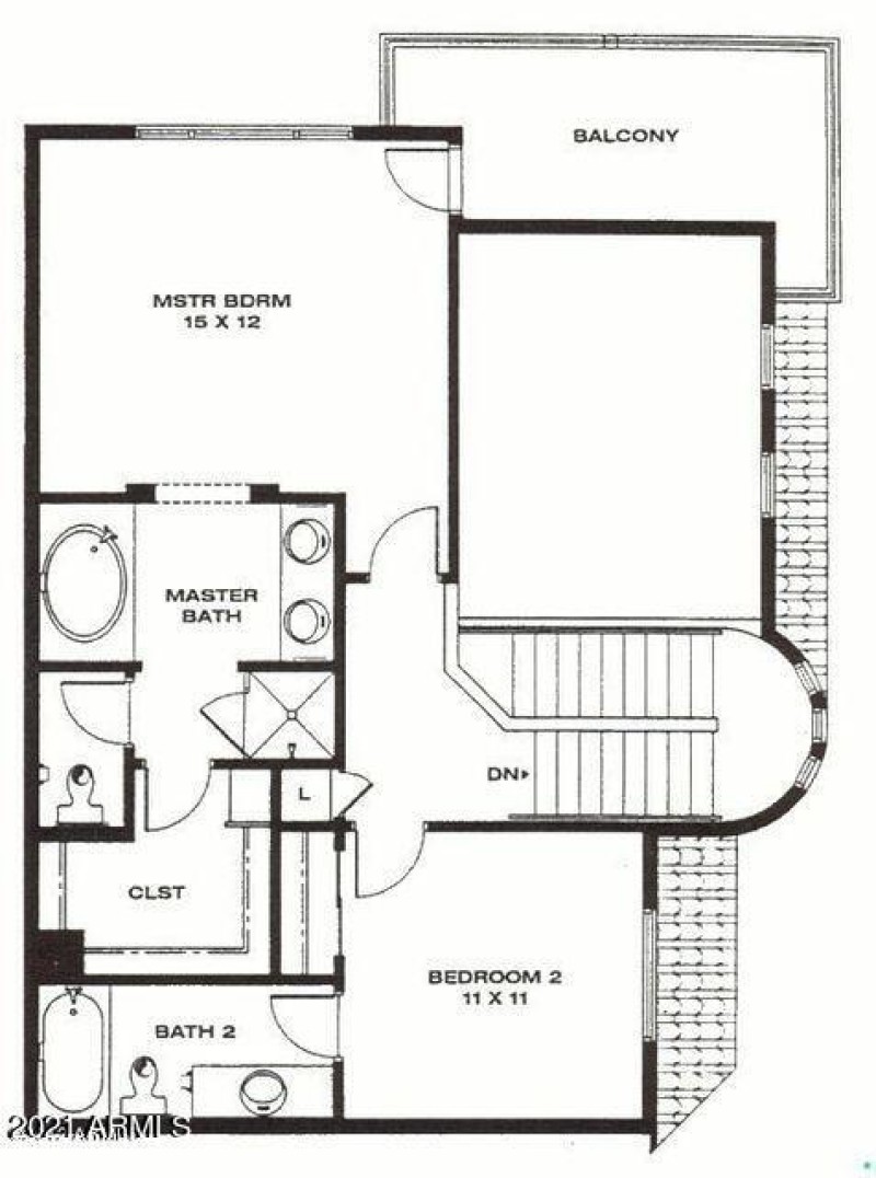
Fabulous ''FURNISHED townhome'' located in Cachet at Grayhawk golf community within 24 hour gate guarded Talon Retreat. The layout features two ensuite BRs upstairs and a den/office downstairs. Master Suite has a walkout balcony with panoramic views of the McDowell Mountains and features a bathroom with a double sink vanity, separate tub & shower & large walk-in closet. The open floor plan features a great room with dramatic vaulted ceiling, a gas fireplace and sliding door access to covered rear patio. The kitchen & breakfast bar open to a spacious dining area. The office/den, laundry and powder room complete the first floor. Direct entry to the 2 car garage. If you're looking for a location that has proximity to fine dining, shopping, golf courses, hiking & convenience, this is it.
Go South on Grayhawk Dr. through the Talon Retreat Guard Gate. Continue to the Cachet Community on right. Left at roundabout (Club House), immediate right and straight down to Bldg 5, Unit 1024
Dwelling Type: Residential
Subdivision: CACHET AT GRAYHAWK CONDOMINIUM
Year Built: 2001, County: N/A
Go South on Grayhawk Dr. through the Talon Retreat Guard Gate. Continue to the Cachet Community on right. Left at roundabout (Club House), immediate right and straight down to Bldg 5, Unit 1024
Listing is courtesy of Desert Star Realty, LLC
Sign in to your account to continue