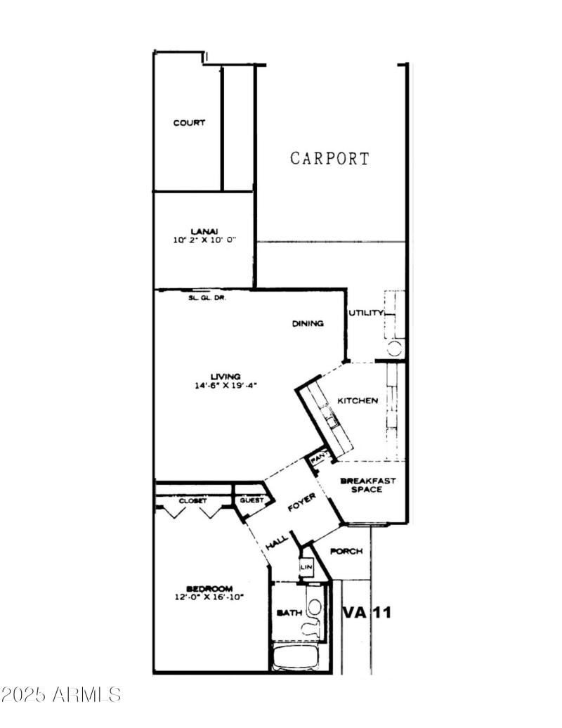
Charming and well-maintained furnished home in a prime Sun City location! Features include new roofing in 2025, solar tubes in 3 rooms, ceramic tile in the kitchen and high-traffic areas, laminate flooring in the bedrooms, living, and dining areas. The kitchen offers laminate countertops, a tiled backsplash, electric stove, microwave, and pantry. Beautiful landscaping. You'll also find ceiling fans in every room (including the enclosed patio) and ample cabinet and storage space throughout. The bathroom includes grab bars for added safety and convenience. Single-car garage with storage cabinets. Fantastic location! Just two blocks from Oakmont Rec Center and the golf course. Close to shopping, Starbucks, and groceries, and 1 mile from Banner hospital. Enjoy the Sun City lifestyle
East on Grand Ave to 111th Ave. Right on 111th Ave. Left on Coggins, home is on the left-hand side.
Dwelling Type: Residential
Subdivision: SUN CITY 1D
Year Built: 1971, County: N/A
East on Grand Ave to 111th Ave. Right on 111th Ave. Left on Coggins, home is on the left-hand side.
Listing is courtesy of Realty ONE Group
Sign in to your account to continue