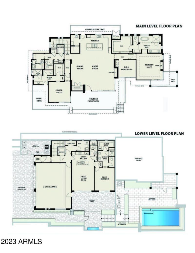
'Pre Construction Offering, a signature 'Mountainside, Gated 3.1 - acre estate with Stunning Contemporary Residence by Mosaic Luxury Homes. Pure privacy, nestled into the upslope of Black Mountain at over 2500 elevation, this 4503 sq. ft. Desert Modern Home is architecturally stunning and features over 3200 sq. ft. main level living. Fabulous Great Room with expansive covered veranda, temp controlled glass enclosed wine room, luxurious Owner's Suite, elevator lift and the most incredible 270 degree views. The lower level Guest Home has separate entrance, kitchen living room, large Jr. Suite and charming private patio. Mosaic Luxury Homes offers elegant owners suites, chef inspired kitchens, designer garages, resort outdoor living and superior design and craftsmanship.
Cave Creek Road, South on N School House Road, continue uphill to entry gate.
Dwelling Type: Residential
Subdivision: The Heights at Black Mountain
Year Built: 2026, County: N/A
Cave Creek Road, South on N School House Road, continue uphill to entry gate.
Listing is courtesy of Ventana Fine Properties
Sign in to your account to continue