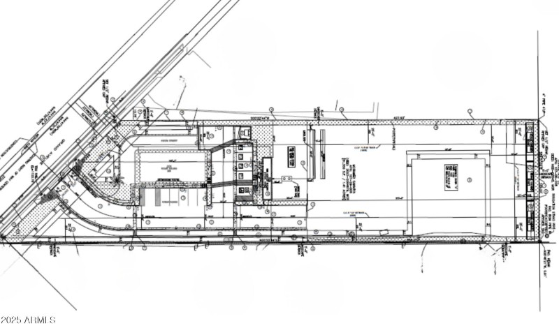
3776 Grand Avenue is a 1.44-acre C-3 zoned parcel in central Phoenix, fully entitled for a modular office and on-site improvements. The site includes fire and septic approvals, driveways, parking, and retention basins. Ideal for contractors, outdoor storage users, car lots, or investors seeking a plug-and-play land site with immediate utility and permitting readiness.
Head northwest toward W Grand Ave. Merge onto W Grand Ave. Destination will be on the right.
Dwelling Type: Land
Subdivision: N/A
Year Built: N/A, County: N/A
Head northwest toward W Grand Ave. Merge onto W Grand Ave. Destination will be on the right.
Listing is courtesy of R.O.I. Properties
Sign in to your account to continue