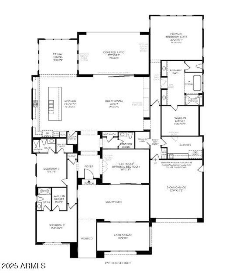
HOME IS ''TO BE BUILT'' AND CONSTRUCTION HAS NOT STARTED. The Andante is an expansive home design. Off a beautiful courtyard, the foyer leads guests past a versatile flex room into an elegant great room that flows into an impressive covered patio. Adjacent to a bright casual dining area, the well-appointed kitchen is complete with a walk-in pantry, a large island, and wraparound counters. At day's end, retreat to the primary bedroom, boasting a large walk-in closet and a tranquil bath featuring dual sinks, a serene soaking tub, a luxe shower with seat, and a private water closet. Two desirable secondary bedroom suites offer walk-in closets. Additional highlights include dedicated laundry spaces off the everyday entry with drop zone, a powder room, and extra storage.
From Pima Rd go East on Happy Valley Rd. Stay on Happy Valley as it curves north. At Ranch Gate Rd, go east for a mile to Sereno Canyon Gate House on the right.
Dwelling Type: Residential
Subdivision: STORYROCK 3 PHASE 1
Year Built: 2025, County: N/A
From Pima Rd go East on Happy Valley Rd. Stay on Happy Valley as it curves north. At Ranch Gate Rd, go east for a mile to Sereno Canyon Gate House on the right.
Listing is courtesy of Toll Brothers Real Estate