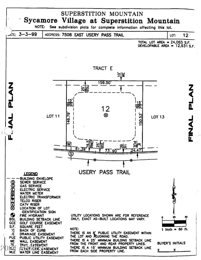
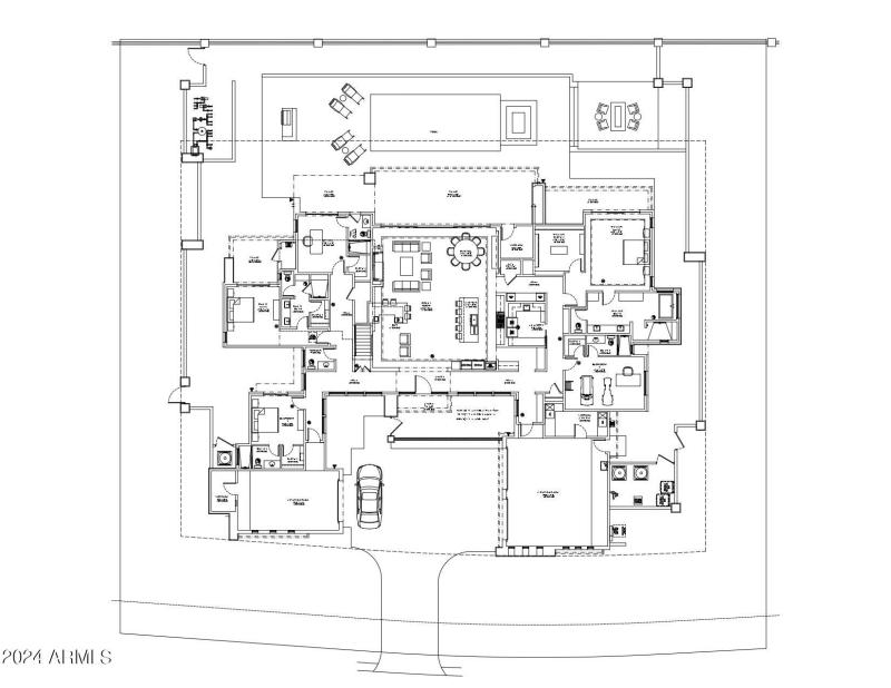
RARE OPPORTUNITY TO OWN A PREMIUM LEVEL BUILDABLE HALF ACRE HOMESITE. CUSTOM ARCHITECTURAL PLANS CONVEY W/ACCEPTABLE OFFER. BUILD YOUR DREAM HOME IN PRESTIGOUS SUPERSTITION MOUNTAIN GOLF & COUNTRY CLUB AND ENJOY AN EXPEDITED STRESS-FREE EXPERIENCE AS ALL OF THE DETAILS HAVE BEEN COMPLETED FOR YOU. COMPLETE SET OF REQUIRED PLANS ARE DESIGN REVIEW COMMITTEE APPROVED AND CAN BE MODIFIED AS DESIRED BY LOCAL EXPERIENCED ARCHITECT. YOUR DREAM HOME WILL HAVE STUNNING 180 DEGREE SUPERSTITION MOUNTAIN VIEWS, CITY LIGHT VIEWS & QUIET LOCATION. GATED SUPERSTITION MOUNTAIN GOLF & COUNTRY CLUB BOASTS 2 JACK NICKOLAS GOLF COURSES, WORLD CLASS AMENITIES INCLUDING FINE DINING, SPORTS COMPLEX, PRO SHOP, SPECTACULAR SUPERSTITION MOUNTAIN VIEWS & 24/7 MANNED GATE. 35 MINUTES TO PHOENIX SKY HARBOR.
From US 60, N on Superstition Mountain Dr, left on Cloudview Ave, right on Sycamore Village Dr, left on Usery Pass to lot on right.
Dwelling Type: Land
Subdivision: Superstition Mountain Golf and Country Club
Year Built: N/A, County: N/A
From US 60, N on Superstition Mountain Dr, left on Cloudview Ave, right on Sycamore Village Dr, left on Usery Pass to lot on right.
Listing is courtesy of DeLex Realty