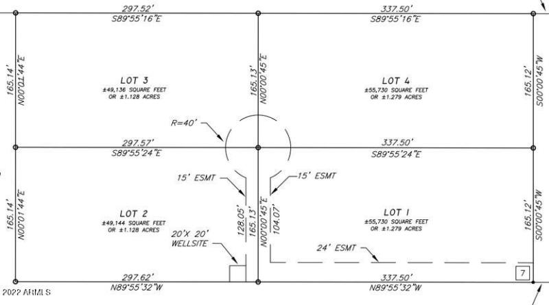
Yep, you just found that perfect lot to build your New Home.., also, these beautiful investment lot/s to build spec homes!!! This listing is for lot 2 of the 4.8 acre parcel. A new shared well will be installed and shared between lots 1,2,3,4 after close of escrow.
Map link-http://maps.google.com/maps?q=33.7488600591913,-112.538565112127
Dwelling Type: Land
Subdivision: N/A
Year Built: N/A, County: N/A
Map link-http://maps.google.com/maps?q=33.7488600591913,-112.538565112127
Listing is courtesy of eXp Realty