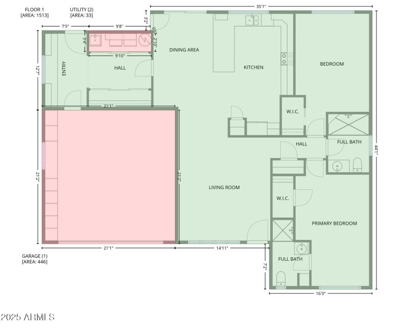
NEW ROOF WAS INSTALLED NOVEMBER 2025! Move in ready in Phase 3 of Sun City! This 2-bed, 2-bath home offers comfort, style & convenience. Situated on a spacious 10,529 sq ft lot, the backyard provides ample room to add a pool, if desired, and it's already partially fenced! Inside, you'll find a large, functional, updated kitchen & beautifully remodeled showers in both bathrooms. The home features no popcorn ceilings, plantation shutters, tile flooring (except bedrooms) and newer windows for a fresh, modern feel. Enjoy peace of mind with a whole-house water filtration system, Flow-Tech anti-scale system & surround sound. The stuccoed exterior, extended covered patio & garage cabinets add both style & practicality. Near WillowBrook & WillowCreek golf courses and Bell & Marinette Rec Centers!
From 107th Ave, go east on Union Hills to Welk Dr, go north on Welk Dr to property on left.
Dwelling Type: Residential
Subdivision: SUN CITY
Year Built: 1976, County: N/A
From 107th Ave, go east on Union Hills to Welk Dr, go north on Welk Dr to property on left.
Listing is courtesy of eXp Realty
Sign in to your account to continue