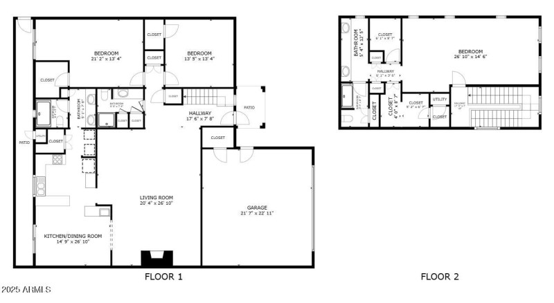
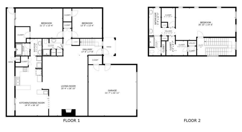
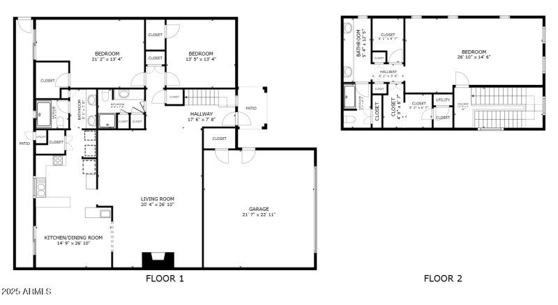
Central Phoenix Modern Comfort! Spacious, lock & go, corner-lot townhome offers an inviting, well designed layout. Granite countertops kitchen, ample cabinetry, walk-in pantry & wet bar - perfect for entertaining. The open floor plan flows into the large living & dining areas highlighted by soaring ceilings & a cozy fireplace. The downstairs bedroom includes a walk-in closet & dual vanity ensuite, ideal for guests or multigeneration living. Upstairs is all about the generous primary suite with built-in cabinetry, walk-in closets & extended dual vanity ensuite. Extra features include a 2-car garage, 2024 water heater, 2023 refrigerator, 2023 washer & dryer & fresh paint throughout. Prime location near Hwy 51, Biltmore district shopping, abundant dining, Piestewa Peak & AZ Canal Trail.
Head east on E Bethany Home Rd. Make a right turn onto N 12th St then another right turn onto E Rose Ln. Final right turn onto N 13th St and enter complex. Home is on the corner left lot.
Dwelling Type: Residential
Subdivision: VILLA DE LAS ROSAS
Year Built: 1975, County: N/A
Head east on E Bethany Home Rd. Make a right turn onto N 12th St then another right turn onto E Rose Ln. Final right turn onto N 13th St and enter complex. Home is on the corner left lot.
Listing is courtesy of HomeSmart
Sign in to your account to continue