Beautiful Golf Course Home with Amazing Views
Welcome to your new home overlooking the 150 yard mark of Hole #1! Enjoy peaceful mornings and stunning sunsets with panoramic golf course views right from your backyard.
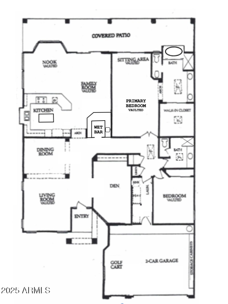
This spacious floor plan offers a comfortable living room with an electric fireplace, a formal dining area, and a separate den/office, perfect for hobbies or working from home. Plantation shutters, tile, and carpet flooring add charm throughout.
The large kitchen features double wall ovens, a induction cooktop and a convenient wet bar that opens to the family room, great for entertaining friends and neighbors. The primary suite is your private retreat with a jetted tub, separate shower, dual sinks, a bidet and an oversized walk-in closet.
The 2.5 car garage provides plenty of storage, built-in cabinets, and room for your golf cart. Step outside to a beautiful paver-covered patio with electric awnings and take in the relaxing golf course views. This home is just steps away from the club house, pools and courts. Perfect for enjoying the active Sun Lakes lifestyle!
NO GATE CODE! MUST USE MANNED GUARD GATE! S on Alma School then L on E San Tan Blvd (through gates into Palo Verde). Continue straight on San Tan Blvd, Home is on the Right.
Dwelling Type: Residential
Subdivision: SUN LAKES 25 LOT 1-162 TR A-E
Year Built: 1994, County: N/A
NO GATE CODE! MUST USE MANNED GUARD GATE! S on Alma School then L on E San Tan Blvd (through gates into Palo Verde). Continue straight on San Tan Blvd, Home is on the Right.
Listing is courtesy of Realty ONE Group