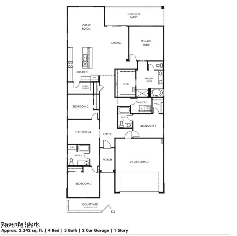
A Spacious and Unique Single-Story Home! The Lark floorplan offers a distinctive single-story layout with 4 bedrooms, 3 bathrooms, PLUS a versatile flex space. As a bonus, Bedroom 4 includes its own private bath and walk-in closet. The Lark is perfect for modern living and entertaining. This home offers white cabinets featuring a white backsplash, quartz countertops in kitchen, wood look tile flooring and beige carpet! Amenity-rich Teravalis will have basketball, pickleball and tennis courts. Plus, a resort-style swimming pool with a kid's splash pad and water features. Future residents will enjoy a clubhouse with a fitness center. Enjoy move-in ready homes with washer, dryer, fridge, whole home blinds included in every home.
Exit the I-10 at Sun Valley Parkway and turn north. At Teravalis Parkway, turn left. Follow signs to Models
Dwelling Type: Residential
Subdivision: TERAVALIS
Year Built: 2025, County: N/A
Exit the I-10 at Sun Valley Parkway and turn north. At Teravalis Parkway, turn left. Follow signs to Models
Listing is courtesy of Meritage Homes of Arizona, Inc