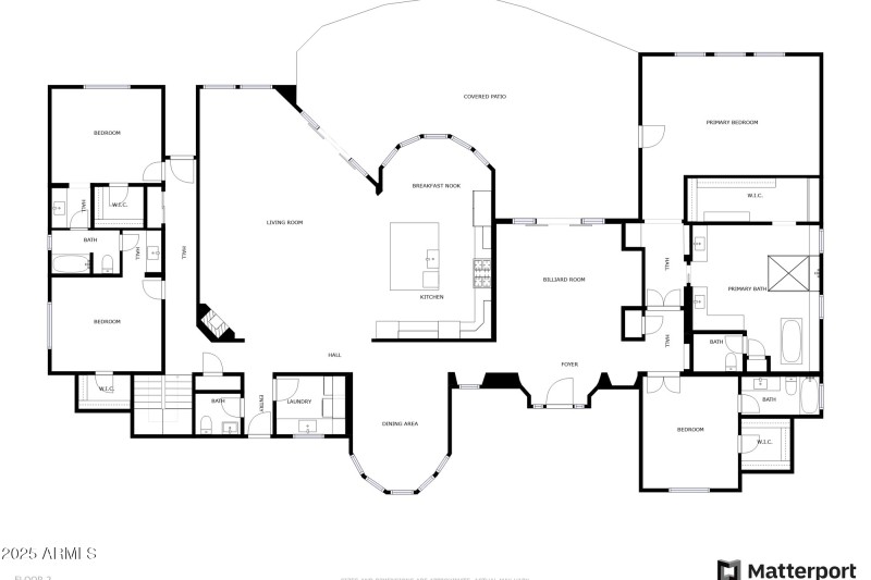
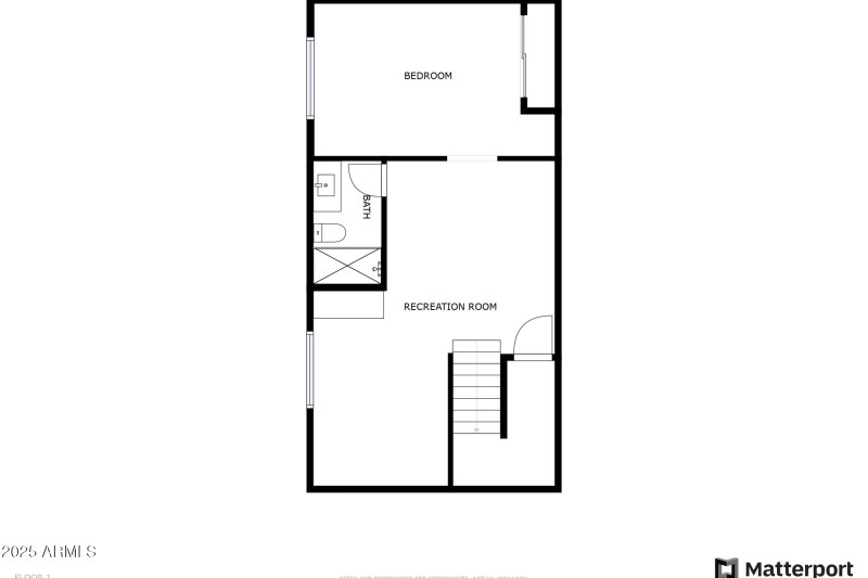
Completely, right to the studs, reimagined in 2022 to create transitional elegance to the nines and can be sold furnished. Family Style Residence yet chic; on a quiet Cul-De-Sac, 1.2 acre pie-shaped lot, views of the McDowell Mountains; NO HOA! All on one level living; featuring a gorgeous ''out of a magazine'' look, with high end quality cabinetry, tiles and fixtures throughout. Top of the line appliances, stylish wide plank wood flooring, wide baseboards, 5 bedrooms, 4.5 bathrooms, partially light and bright guest quarters on the lower level, room for a sport court, pickleball, tennis, BBQ - Guest Home or RV Garages. Expansive motor court leads into a fantastic Garage setup for car lovers who value space, natural light and ease of access. Don't miss this home....
From Shea, South on 108th Street - look for the CUL DE SAC
Dwelling Type: Residential
Subdivision: Scottsdale
Year Built: 2020, County: N/A
From Shea, South on 108th Street - look for the CUL DE SAC
Listing is courtesy of Compass