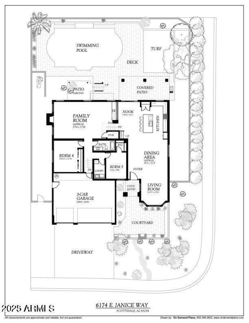
This beautiful tri-level home was fully renovated in 2021, and is situated in the prestigious Kierland area of Scottsdale with NO HOA. Plenty of room for entertaining, luxury finishes throughout, gourmet kitchen featuring high-end stainless steel appliances, granite countertops, and custom cabinetry, a beautiful wet bar with wine fridge, and more! Garage is pre-wired for EV charger install. Custom-built, temperature controlled ADU can be used for anything! On a corner lot, where the backyard offers a private oasis, featuring a pool, lounge area, built-in BBQ, grass area and covered patio. 2 bedrooms downstairs, 3 upstairs, kitchen and dining on main level. Perfect for an investor wanting cash flow, or a family looking for their dream home. Move-in ready!
Greenway Road to 62nd St, South on 62nd Street to Janice Way, West on Janice, First property on the right (corner lot).
Dwelling Type: Residential Lease
Subdivision: PARADISE LANE NO 3
Year Built: 1991, County: N/A
Greenway Road to 62nd St, South on 62nd Street to Janice Way, West on Janice, First property on the right (corner lot).
Listing is courtesy of eXp Realty