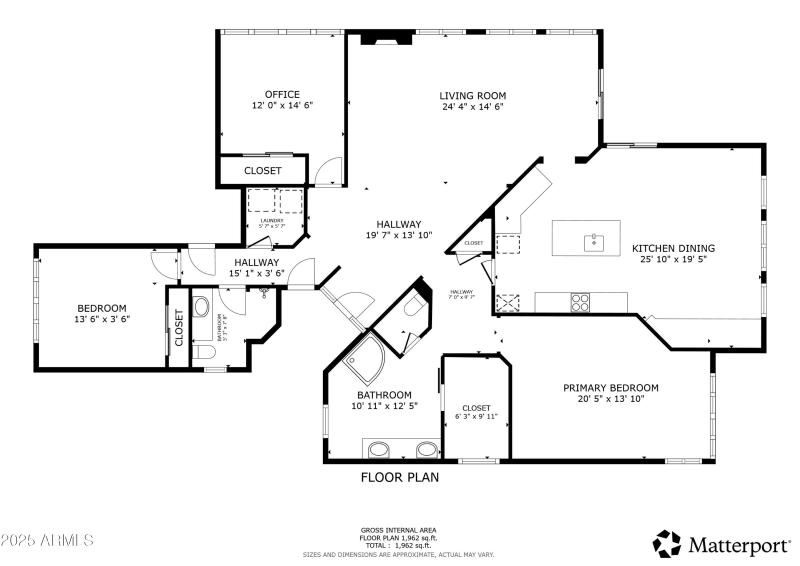
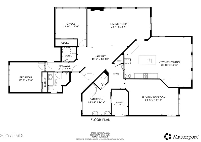
Completely turnkey, lock & leave Edmunds-built property set in the middle of Belcourt on a quiet culdesac. Gently lived-in home features newer flooring, bathrooms, countertops, plumbing fixtures, front & rear landscaping, interior & exterior paint, & a brand new roof. Copper plumbing - polybutylene removed! Soaring great room ceilings with large windows gather morning natural light. Large kitchen features flexible room for a large dining space or cozy den/sitting area. Primary and secondary bedrooms are split for privacy with bedroom 3 offering a separate exit to the side yard. Primary bath offers large walk-in shower & is plumbed for a tub. Plantation shutters & ceiling fans throughout. Front & rear yard feel open with plenty of blue sky views. Easy walk to pool, tennis, & pickleball.
Through gate, take Stonegate Circle to 115th Street. (L) on 115th St to 115th Place, (R) on 115th Place to the property in the culdesac.
Dwelling Type: Residential
Subdivision: PARCEL 3 AT STONEGATE LOT 1-78 TR A-F
Year Built: 1993, County: N/A
Through gate, take Stonegate Circle to 115th Street. (L) on 115th St to 115th Place, (R) on 115th Place to the property in the culdesac.
Listing is courtesy of Compass
Sign in to your account to continue