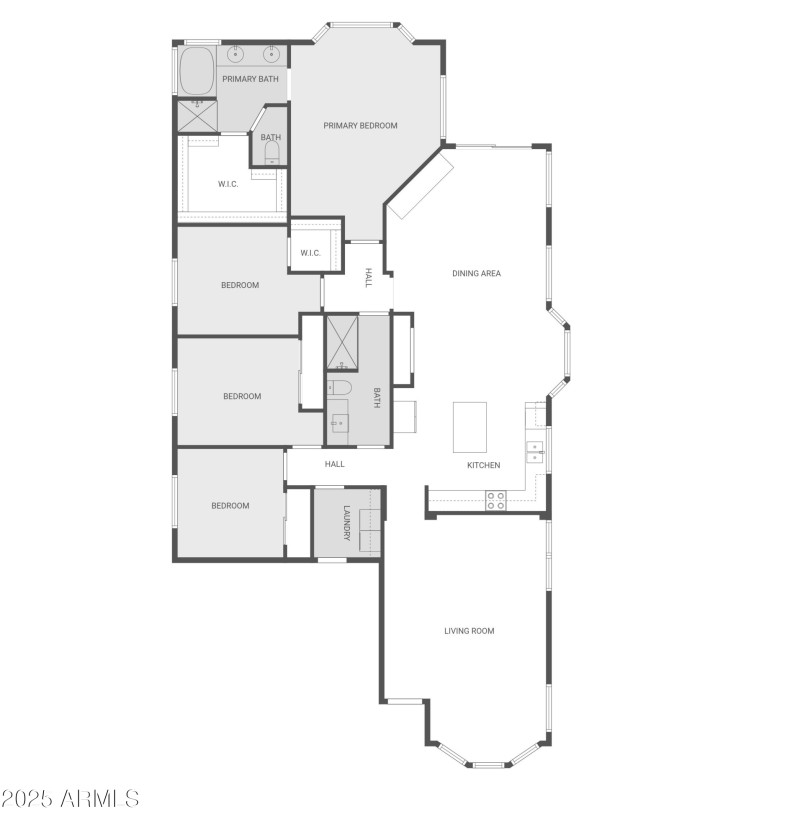
One of the largest single story homes in the subdivision with 1788 square feet, 4 bedroom 2 bath. (Jack and Jill Bathroom). Home features 3 bay windows, vaulted ceilings and ceramic tile floor in all the right places combined with wood floors. Gorgeous kitchen features an island with pendant lighting and a large pantry. This home offers great space for gatherings with family and friends! Cozy breakfast area with bay window with adjoining family room. Living room with bay window and dining room are very open. Master bedroom has bay window, bath has double sinks, separate tub and shower, and walk in closet. Home is near A+ rated schools.
This home has it all. Don't miss out on the opportunity to be the proud owner!
East on University to Opal. North on Opal to home on the left.
Dwelling Type: Residential
Subdivision: DAVE BROWN AT MOUNTAIN & UNIVERSITY
Year Built: 1999, County: N/A
East on University to Opal. North on Opal to home on the left.
Listing is courtesy of Equity Realty Group, LLC
Sign in to your account to continue