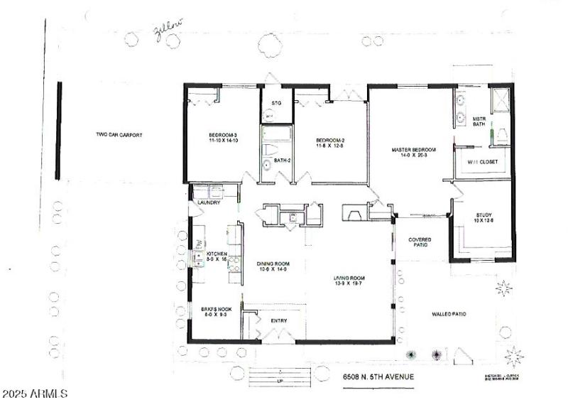
A rare find between the 7s. 3 bedroom 2 bath plus an office/workout room! Only 15 units in the complex on a private quiet street with a self managed HOA. Whether you're ready to downsize or want to get into this desirable neighborhood, this is your opportunity! . Move in or make it your own, see floor plan with photos. new water heater installed 12/25,
Complex is on the north side of Maryland at 5th Avenue. Go north on 5th Avenue and property is on the left.
Dwelling Type: Residential
Subdivision: MARYLAND WEST MANOR
Year Built: 1970, County: N/A
Complex is on the north side of Maryland at 5th Avenue. Go north on 5th Avenue and property is on the left.
Listing is courtesy of HomeSmart
Sign in to your account to continue