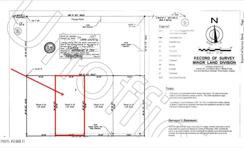
Nice level lot with views within easy drive of Pavement, and power just two lots away at Chili Pepper! This lot has excellent views, and gorgeous vegetation. This is in an area of many homes, and roads are good to get back to town. This property shares an easement with the property to south according to survey. 12' per side. Owner also has adjacent 1.25 Acre lot available to the east, so you could buy both and be even closer to power. Owner obtained these lots through tax deed; Please use Pioneer Title. Broker has an interest in this property.
From Papago and Allegro, South to Chili Pepper, cross ditch to 3rd lot in on West side. Chili Pepper aligns with south side of property.
Dwelling Type: Land
Subdivision: N/A
Year Built: N/A, County: N/A
From Papago and Allegro, South to Chili Pepper, cross ditch to 3rd lot in on West side. Chili Pepper aligns with south side of property.
Listing is courtesy of Just Land Consultants