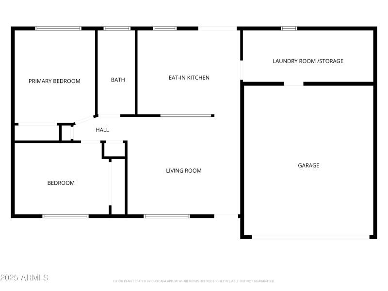
Meticulously maintained 2-bed, 1-bath corner-lot home with N/S exposure, no HOA, and excellent curb appeal. Bright, neutral interiors feature an eat-in kitchen with stainless steel appliances and white cabinetry, tile flooring throughout, and spacious bedrooms. Attached 2-car garage, RV gate, and a spacious laundry room that doubles as a storage area add convenience. Backyard features a generously sized covered patio and landscaped areas with garden and flowering plants. New windows with sunscreens and patio door slider (2023), fresh interior/exterior paint, updated bathroom finishes, replaced irrigation, patio roof, and other intentional updates to the home.
Move-in ready and convenient to the 101, 51, and 17 freeways, shopping, dining, parks, and Paradise Valley Community College.
From Union Hills go S 29th St, E on Villa Theresa
Dwelling Type: Residential
Subdivision: PEPPER RIDGE UNIT EIGHT
Year Built: 1985, County: N/A
From Union Hills go S 29th St, E on Villa Theresa
Listing is courtesy of eXp Realty
Sign in to your account to continue