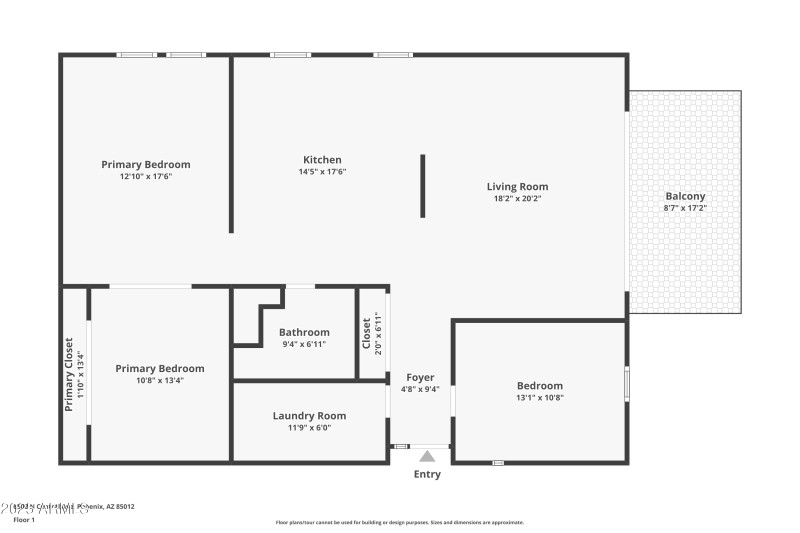
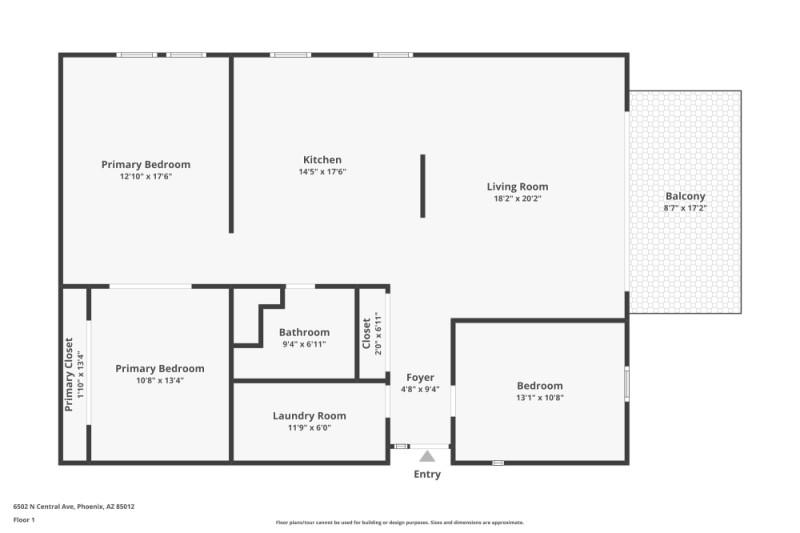
Welcome to ultimate urban living, designed by Starkovich. This mid-century residence is located within The Olympus, a historic landmark, is an architecturally significant community in Phoenix's Central Corridor. Classic mid-century details include fleur-de-lis breeze block and original slag glass accents that highlight the building's distinctive character. Positioned on the third floor, the home features an open, light-filled layout with expansive South Mountain views and striking evening sunsets. Exposed cast concrete barrel vaulted ceilings inside reflect the building's iconic exterior arches. The kitchen is equipped with Maistri La Cucina cabinetry, a Sub-Zero under-counter refrigerator and freezer, and Wolf and Asko appliances. A den connects both to the kitchen and the primary suite, providing flexible living space. The primary bedroom includes a custom closet system, while the second bedroom functions well as an office or guest room. Additional features include a utility room with washer and dryer, two underground parking spaces, and a private storage area. Roman and French inspired design extend to the outdoor pool & adorned mature landscaping. Minutes to trendy restaurants, shopping and steps from the Murphy's Bridle Path.
Northwest corner of Central and Maryland. (Middle Building) park along Maryland.
Dwelling Type: Residential
Subdivision: OLYMPUS
Year Built: 1964, County: N/A
Northwest corner of Central and Maryland. (Middle Building) park along Maryland.
Listing is courtesy of Russ Lyon Sotheby's International Realty
Sign in to your account to continue