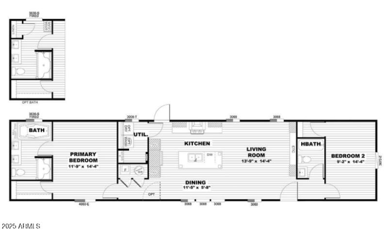
Welcome to this charming, well-maintained manufactured home in Vista Del Sol! This beautifully crafted residence by Schult Waco 1 offers 2 beds, 2 baths, & 1020 sqft of thoughtfully designed living space. The inviting interior showcases tons of natural light, neutral palette, and wood-look tile flooring t/out. Enjoy a modern open-concept layout with a media center! The spacious kitchen boasts SS appliances, white shaker cabinetry, recessed lighting, and an island w/breakfast bar. The cozy main suite has a walk-in closet and a full bathroom w/dual sinks. The carport parking can be your relaxing area as well! With its Resolution 16682X model, this home balances function and style, making it an excellent choice for those seeking a comfortable and affordable living environment. Move-in ready!
Head east on W McKellips Rd, Turn left onto 3rd Ave, Turn left onto 1st St. The property will be on the right.
Dwelling Type: Residential
Subdivision: VISTA DEL SOL
Year Built: 2023, County: N/A
Head east on W McKellips Rd, Turn left onto 3rd Ave, Turn left onto 1st St. The property will be on the right.
Listing is courtesy of RE/MAX Solutions