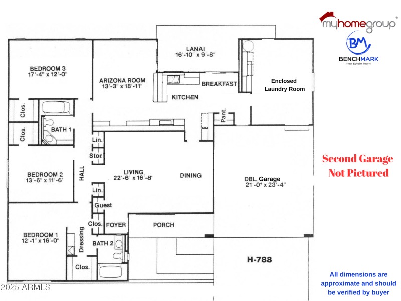
Situated on almost half an acre, this 3 bedroom, 2 bath home offers something you won't find anywhere else in the community — TWO full garages, including a dedicated workshop garage perfect for hobbyists, car lovers, or anyone needing extra space to create, build, or store.
Inside, you'll enjoy a bright, comfortable layout with spacious living areas and an inviting kitchen. Step out back to your enclosed patio, ideal for year-round relaxing, morning coffee, or entertaining without the heat or wind.
Outside, the oversized lot gives you incredible space to spread out, garden, entertain, or design the backyard of your dreams.
Dwelling Type: Residential
Subdivision: SUN CITY WEST UNIT 8
Year Built: 1979, County: N/A
Listing is courtesy of My Home Group Real Estate
Sign in to your account to continue