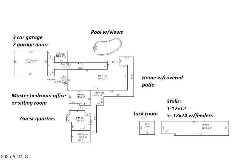
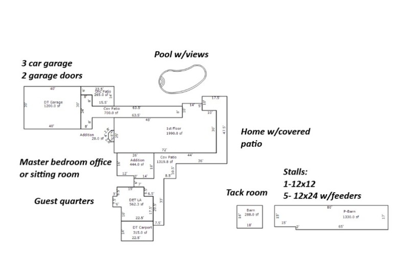
AMAZING VIEWS! HORSE PROPERTY! 10 ACRES! CASITA! POOL! Completely furnished! Main home is loaded w/ character. Spanish style 2 bedroom, 2 bath. Custom Knotty Alder solid core doors & cabinets were made by the owner. Saltillo tile. Clay tile roof. Large master suite w/built in window seat*Beehive fireplace*office w/wet bar w/saguaro rib doors*3 closets-1 large walk-in*master bath w/tile shower*tile counters*built in vanity. Rock fireplace in the livingroom. Casita-Full bath*Knotty Alder doors*Viga beams & tongue/groove ceiling. Beautiful pool. Tack room w/4 saddle racks (inside & out), Beehive fireplace. 6 covered stalls- 1-12x12, 5-12x24 w/feeders*90' round pen*2 hitching posts. Storage unit. Walkin cooler. Exterior-Built in BBque*block gas firepit, pavers*custom water feature. Several seating areas outside. Walk out of the French Doors to a covered patio. Numerous fruit trees and mature landscaping. Carport for Casita is located between the Main home & Casita. 3 car garage for main home. Additional 5 acres has plenty of room for your barn, turnout and additional stalls.
US HWY 60, Turn onto N 296th Ave., Turn Rt on N 295th Ave, Last home on the Rt. (prior to gate)
Dwelling Type: Residential
Subdivision: Rio Vista Hills
Year Built: 1973, County: N/A
US HWY 60, Turn onto N 296th Ave., Turn Rt on N 295th Ave, Last home on the Rt. (prior to gate)
Listing is courtesy of Century 21 Arizona West
Sign in to your account to continue