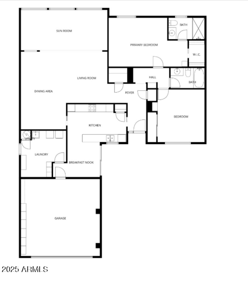
Welcome to this fantastic single-story home featuring a 2-car garage! From the moment you enter, you will immediately notice the large living & dining room and the sizable family room graced with abundant natural light. The kitchen offers plenty of cabinets, built-in appliances, a convenient breakfast bar, and a cozy breakfast nook with sliding glass doors leading to the patio. Continue onto the serene primary bedroom, which includes a walk-in closet and a private bathroom, bringing comfort to your everyday routine. Enjoy unwinding in the screened-in patio. Perfectly located near restaurants, shopping destinations, and more. This gem is the one you're looking for!
103rd Ave & Boswell Blvd. Take 103rd to Kingswood. Right on Kingswood. Home on the right.
Dwelling Type: Residential
Subdivision: SUN CITY UNIT 22
Year Built: 1971, County: N/A
103rd Ave & Boswell Blvd. Take 103rd to Kingswood. Right on Kingswood. Home on the right.
Listing is courtesy of eXp Realty
Sign in to your account to continue