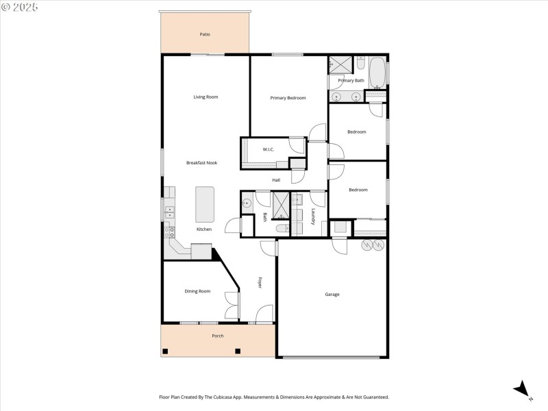
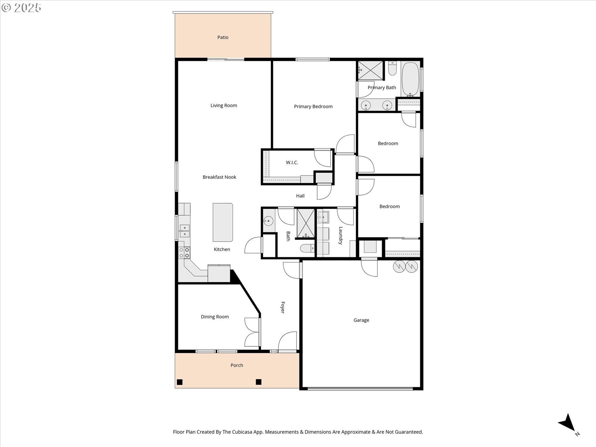
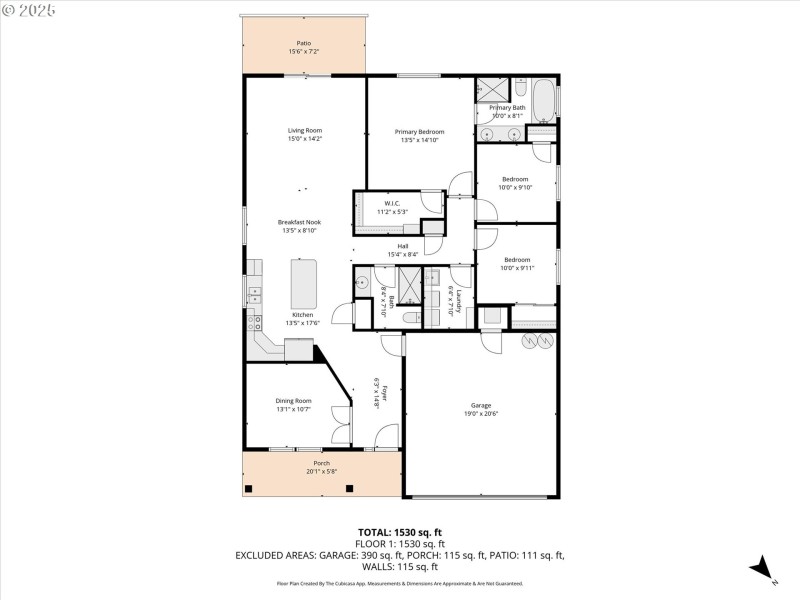
Come take a look at this well maintained 2016 single story beauty in quaint Kalama. Desirable Stone Forest neighborhood is just minutes to I5 freeway & friendly downtown w/shopping, restaurants, antique stores & Port of Kalama with marina, walking paths along the Columbia plus McMenimans restaurant/hotel & Mountain Timber Market w/unique shops & eateries. Offers covered front porch & fenced back yard plus attached double garage. Lap hardi-plank siding, heat pump & built in sprinklers. Interior offers an office or formal dining room, large living w/slider to back yard & laminate wood look flooring, wood cabinets, granite island & counters & all kitchen appliances & W/D. Primary has WI shower & WI closet. 2 additional beds & full bath.
From city of Kalama proceed S. to Old Pacific Hwy, Left on Stone Forest Dr. to R. on Stepping Stone.
Dwelling Type: Residential
Subdivision: N/A
Year Built: 2016, County: US
From city of Kalama proceed S. to Old Pacific Hwy, Left on Stone Forest Dr. to R. on Stepping Stone.
Listing is courtesy of Key Results Real Estate