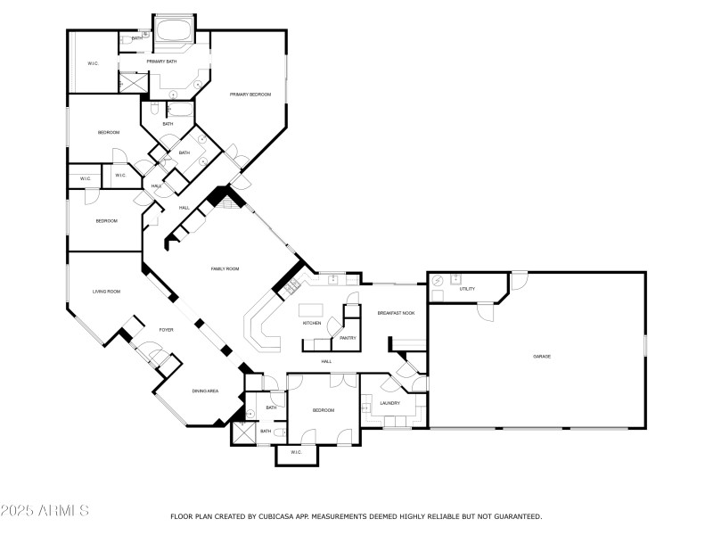
Welcome to your private desert sanctuary in the heart of Carefree. Set on nearly an acre in the prestigious Sentinel Rock Estates, this distinguished 4 bedroom, 3 bath Southwestern Territorial home showcases sweeping Black Mountain views from one of the community's most secluded and sought-after lots.
Architectural detailing, soaring ceilings, and an open concept kitchen and great room create bright, versatile spaces designed for both relaxation and entertaining. The backyard lives like a resort with a saltwater pool, fireplace, built-in BBQ cabana, and expansive covered patios perfect for enjoying spectacular Arizona sunrises and sunsets.
The floor plan includes a private entrance suite ideal for guests, clients, multi-generational living, or a dedicated home office. Additional highlights include a roof replacement completed in 2022 and a three car garage offering generous storage.
Just minutes from shopping, dining, and galleries in downtown Carefree, yet worlds away in peace and privacy, this home embodies the balance of elegance, comfort, and desert tranquility that defines the Carefree lifestyle.
North on Cave Creek approx. 1/2 mile to Sentinel Rock Rd, East to 58th Street, North to Restin, East to property.
Dwelling Type: Residential
Subdivision: CAREFREE SENTINEL ROCK ESTATES 2 LOT 63-133
Year Built: 1999, County: N/A
North on Cave Creek approx. 1/2 mile to Sentinel Rock Rd, East to 58th Street, North to Restin, East to property.
Listing is courtesy of Berkshire Hathaway HomeServices Arizona Properties
Sign in to your account to continue