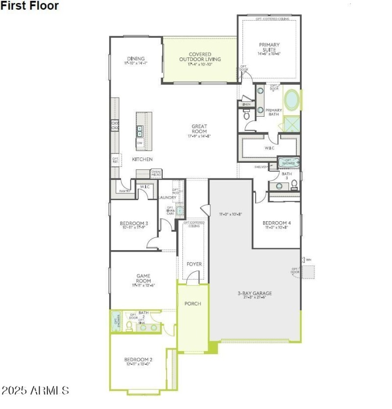
Farmhouse-style, single-level living featuring a spacious split floor plan with 4 bedrooms, 3 bathrooms, a game room, outdoor living spaces, a 3-bay tandem garage, and designer upgrades throughout! The kitchen features a GE Profile 30'' gas cooktop appliance package with a single oven microwave, and designer-style hood in stainless steel, a touch faucet and single bowl sink, granite countertops, custom backsplash, and a waterfall island with pendant lights above it. Other notable features include soft close cabinets and drawers in Benton Paint Colada with 42'' uppers and satin nickel hardware, a primary bath with upgraded fixtures and custom tile surrounds at the shower and soaking tub, Cozy Taupe luxury vinyl plank in high traffic areas, carpet at the bedrooms, and 2'' window blinds.
From Ocotillo & Gantzel, South on Gantzel, East on El Parque Ln, right on Las Robles Dr to Tierra Ln. Models are on the right-hand side.
Dwelling Type: Residential
Subdivision: RE-PLAT OF IRONWOOD SPRINGS RANCH 2024033104
Year Built: 2025, County: N/A
From Ocotillo & Gantzel, South on Gantzel, East on El Parque Ln, right on Las Robles Dr to Tierra Ln. Models are on the right-hand side.
Listing is courtesy of Tri Pointe Homes Arizona Realty
Sign in to your account to continue