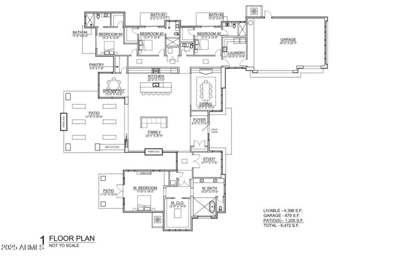
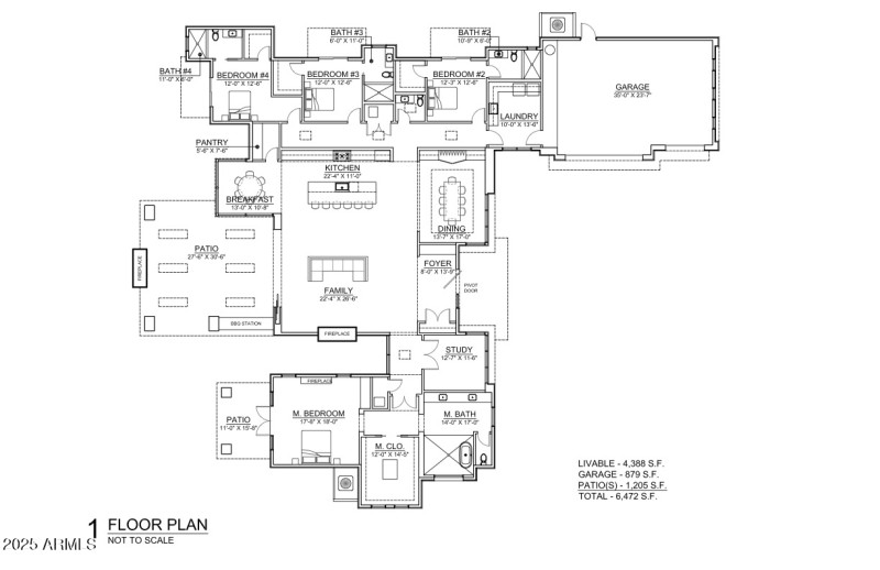
*Builder Incentive* Pool or 3-2-1 buydown. 3.50% rate | 6.538% APR (760 FICO). Seller-funded. NMLS #1842513. Restrictions apply. From the moment you enter, the dramatic sightline draws you through the foyer and great room, past 16'x10' pocket glass doors to a resort-style covered patio with a fireplace perfectly framing majestic Winfield Mountain. Your private desert masterpiece awaits: a stunning 4,300+sf modern luxury estate on a 1-acre view lot in prime North Scottsdale, moments from Whisper Rock with no HOA. Chef's kitchen with commercial grade appliances, 1205sf of covered patio space, oversized 3-car garage w/ mini-split option, 2 fireplaces, spray-foam insulation, curbless showers; still time to select all finishes + optional view deck. May 2026 completion. Views, views, view
East on Westland from Scottsdale to Hayden. South on Hayden to Smokehouse. East on Smokehouse to 82nd St. South to home.
Dwelling Type: Residential
Subdivision: Metes & Bounds
Year Built: 2026, County: N/A
East on Westland from Scottsdale to Hayden. South on Hayden to Smokehouse. East on Smokehouse to 82nd St. South to home.
Listing is courtesy of Venture REI, LLC
Sign in to your account to continue