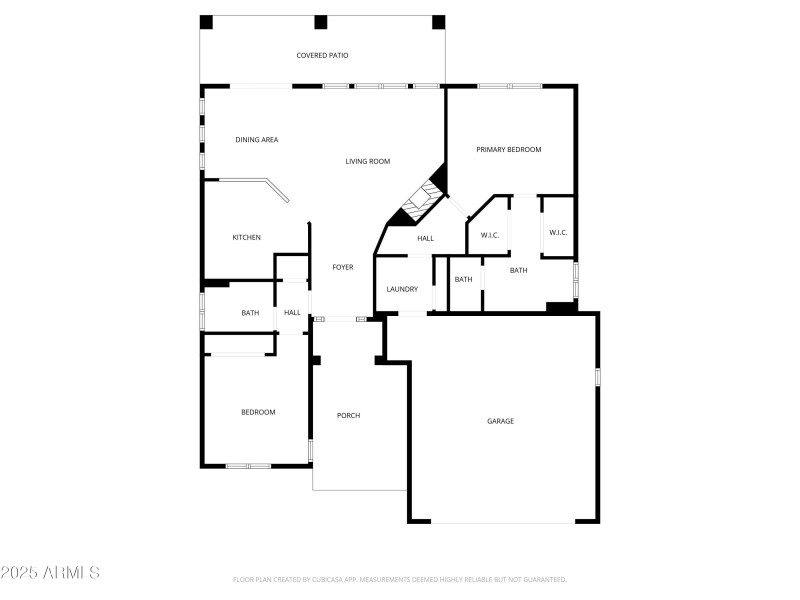
Private cul-de-sac living in this Winterhaven 55+Community in this ''just enough space'' 1250SF Home...2 Bedroom/2 Bath/2 Car Garage, and property is clean, clean, clean...Inside and Out!!! Split plan with lovely Master Bedroom Suite with 2 walk-in closets, double walk-in shower, dual sinks with updated lighting, and water closet with updated toilet...Guest bedroom has en-suite bath with updated lighting and updated toilet too!!! Desirable Great-Room Concept Living with Gas-Log Fireplace; Kitchen has newer Stainless Steel Appliance package, Breakfast Bar, and plenty of storage!!! Patio just off the Dining Area runs the full-length of the home and extends out too...plenty of room for your outdoor living and entertaining and has a huge, low-maintenance lot!!!
Winterhaven Drive to Glenview Court, go South to Candlewood Way/Drive, go East to property on cul-se-sac...
Dwelling Type: Residential
Subdivision: WINTERHAVEN COUNTRY CLUB ESTATES PHASE 1A
Year Built: 1998, County: N/A
Winterhaven Drive to Glenview Court, go South to Candlewood Way/Drive, go East to property on cul-se-sac...
Listing is courtesy of Long Realty Company
Sign in to your account to continue