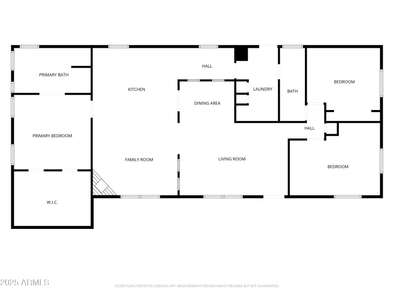
Welcome home to this spacious 3bd/2ba manufactured home located in Cypress Estates, a 55+ community. This beautiful 1993 Crespoint double-wide offers plenty of room at just over 2000sqft. The kitchen is outfitted with updated appliances and ample counter space. From your kitchen you can look out over your generously sized island to the family room and fireplace. The living room and formal dining room with the vaulted ceiling give a wonderfully open feeling as you enter through the cheery front door. The master bedroom is equally well-sized with a very large walk-in closet. Enjoy a soak in the new jacuzzi tub set in place for installation or a steaming shower in the large master bathroom. The two remaining bedrooms make lovely guest rooms or an office. The community pool and hot tub are ready or relaxation or an exercise class. The community center provides a library, meeting area, billiards, shuffleboard, and more. The park provides a putting green and dog park.
Head W on E. Main St. to the Cypress Estates entrance located on the N side of E. Main St.
Dwelling Type: Residential
Subdivision: Cypress Estates
Year Built: 1993, County: N/A
Head W on E. Main St. to the Cypress Estates entrance located on the N side of E. Main St.
Listing is courtesy of Century 21 Arizona Foothills
Sign in to your account to continue