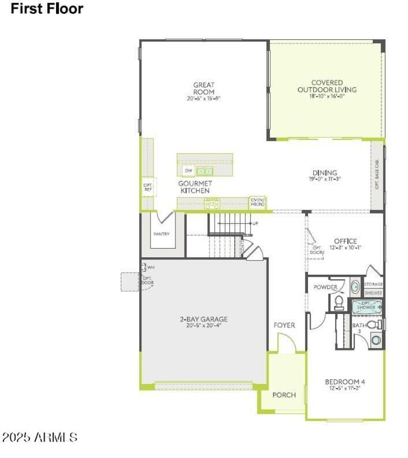
Enchanting, new, two-story home located in Gannet at Waterston Central featuring 4 bedrooms, 3.5 bathrooms, an office, a loft, an attached 2 bay garage, outdoor living spaces, abundant storage, and designer upgrades throughout! The kitchen offers a GE Gourmet appliance package with a 30'' gas cooktop, single oven, designer hood, dishwasher, and microwave, as well as a recycle center, quartz countertops with custom backsplash, a center island, and a large walk-in pantry. Other designer upgrades include tile flooring with upgraded carpet at the bedrooms, a bedroom with a full bathroom downstairs, 8' interior doors, a frameless walk-in shower at the primary bath, a center pull sliding door at the dining room, pavers at the driveway, a covered back patio, and so much more!
Dwelling Type: Residential
Subdivision: WATERSTON CENTRAL PHASE 1
Year Built: 2025, County: N/A
Listing is courtesy of Tri Pointe Homes Arizona Realty
Sign in to your account to continue