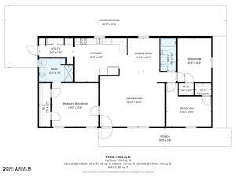
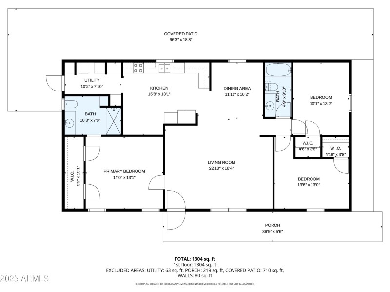
Welcome to this charming 3 bedroom, 2 bath home located in the desirable 55+ community of Palm Lakes Village. This property features new carpet in the bedrooms and a nice split floorplan that has comfortable living space that's perfect for relaxing or entertaining. This home offers a great foundation, ready for your personal touches & updates to make it your own. Situated on OWNED LAND and conveniently located across from the clubhouse, lake & pool, it's ideal for morning strolls. The community offers separate RV parking for a small fee, making it a fantastic option for those who love to travel or need extra storage. Palm Lakes offers many amenities including pickleball, horseshoes, and year-round events. A great opportunity to own a clean, comfortable home in a wonderful community!
Due to road construction it's best to go north on 32nd from Greenway and turn Right into the subdivision at Grandview Rd and left on 33rd Way to home.
Dwelling Type: Residential
Subdivision: PALM LAKES VILLAGE UNIT 1
Year Built: 1998, County: N/A
Due to road construction it's best to go north on 32nd from Greenway and turn Right into the subdivision at Grandview Rd and left on 33rd Way to home.
Listing is courtesy of HomeSmart
Sign in to your account to continue