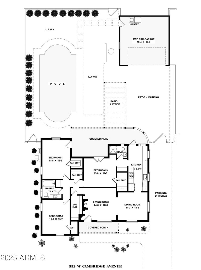
WELCOME TO WILLO! This classic red brick bungalow has beautiful curb appeal & is perfectly located within the neighborhood. As you step inside, you'll be greeted by hardwood floors, gorgeous archways & charming built-ins. The living room offers a beautiful fireplace & flows nicely into the dining room. The custom kitchen features inset designer cabinets, stone counters, stainless steel appliances & unique tile details. Both bathrooms have been nicely updated & the bedrooms are all very spacious with fantastic walk-in closets. Outside you'll enjoy resort style living with amazing outdoor living spaces with covered patios, large hedges, an outdoor shower & a gorgeous swimming pool. The backyard also offers a fantastic two car garage with electric and plumbing. Walking Distance To All Your Favorites! Welcome Home!
Dwelling Type: Residential
Subdivision: LOMA VISTA PLACE
Year Built: 1949, County: N/A
Listing is courtesy of HomeSmart
Sign in to your account to continue