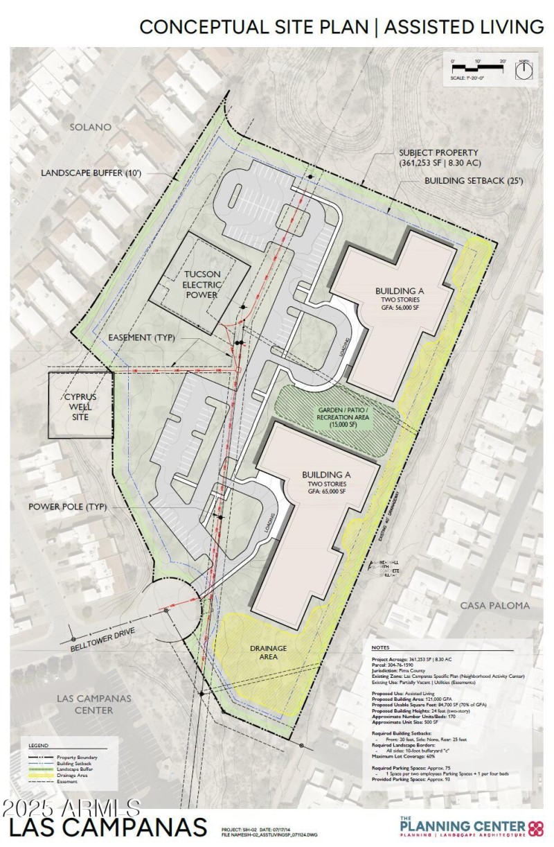
Check the Concept plans. This can be so many things. Do not wait too long to own this incredible land opportunity that can draw so many high use capabilities. 8+ Acres and zoned SP- Located in the heart of Green Valley, AZ Perfect for a 30 Lot subdivision, a large Church, activity center, medical offices, or a large planned assisted living center. Tons of concepts are able to be done. OWNER FINANCING available. Seller is a Licensed Real Estate Agent in Arizona.
Take I-19 S to W Esperanza Blvd in Green Valley. Take exit 65 from I-19 S Continue on W Esperanza Blvd Turn right onto N Desert Bell Dr Turn right at the 1st cross street
Dwelling Type: Land
Subdivision: LAS CAMPANAS
Year Built: N/A, County: N/A
Take I-19 S to W Esperanza Blvd in Green Valley. Take exit 65 from I-19 S Continue on W Esperanza Blvd Turn right onto N Desert Bell Dr Turn right at the 1st cross street
Listing is courtesy of OMNI Homes International
Sign in to your account to continue