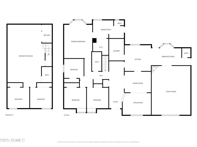
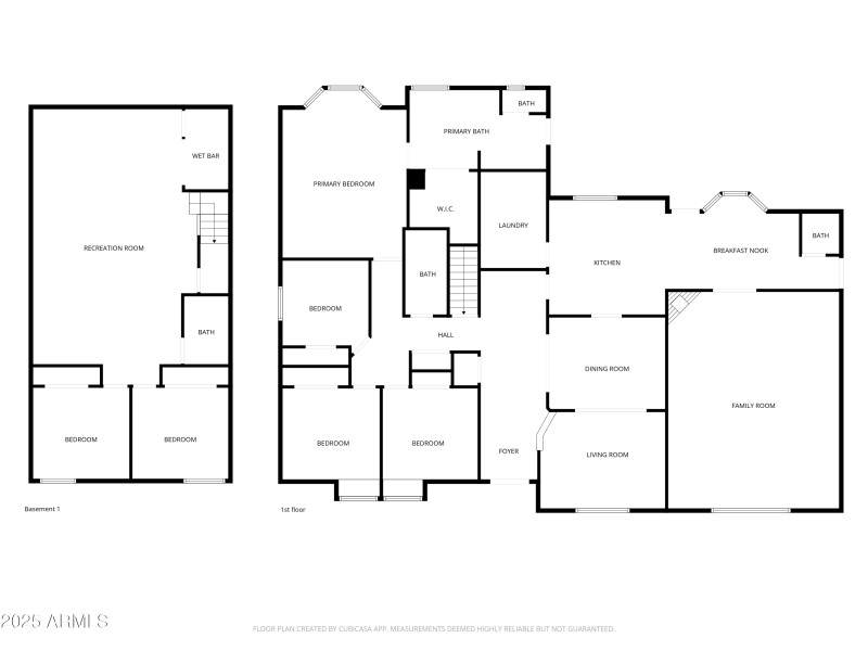
Wow! What an amazing property! This is your chance to have your own private oasis in one of the most desirable neighborhoods in Mesa/ Gilbert w/ NO HOA!! So many possibilities w/ almost an acre of land! Horses, chickens, & kids can run free in the huge fenced GRASS BACKYARD surrounded by lush, mature landscaping including citrus trees! Plenty of room for all your cars w/ 10 slab spaces behind the gate! The home features 3800 sq ft of living space including 6 bedrooms & 3.5 baths! The fully finished BASEMENT includes 2 bedrooms, a bathroom, & a wet bar which could easily be an apartment for in-laws or extra income! Original features including pocket doors, sunken living room, brick fireplace, and window storage benches add to the unique charm of this custom home! A corner lot, pool, spa, and covered patio make the outdoor space great for entertaining! And two large sheds and a three car garage help with all your storage needs! Easy access to HWY 60 makes commuting a breeze! Come check it out in person today!
South on Val Vista to Baseline Rd. West on Baseline to 32nd St. North on 32nd St. to Irwin (left side). Home is on the NW corner.
Dwelling Type: Residential
Subdivision: HERITAGE ACRES UNIT 2
Year Built: 1987, County: N/A
South on Val Vista to Baseline Rd. West on Baseline to 32nd St. North on 32nd St. to Irwin (left side). Home is on the NW corner.
Listing is courtesy of HomeSmart Success
Sign in to your account to continue