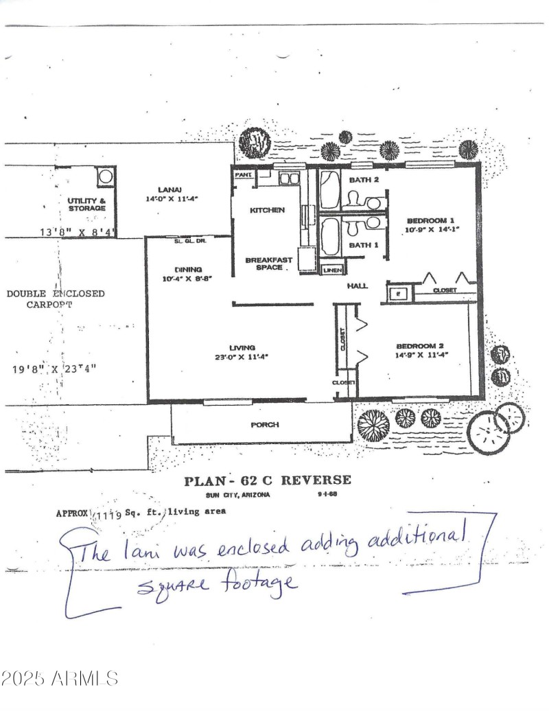
Appealing and updated, this home is nestled in the heart of Sun City. You will love the kitchen with spacious cabinetry and plenty of counter space for cooking and entertaining. Both bathrooms have been updated with new vanities, mirrors and lighting. The guest bath features a spa tub. The primary bath boasts a true spa shower transforming bathing into a luxurious, multi-sensory ritual. The lanai was enclosed creating a warm and cozy family room. All the fans and light fixtures have been updated offering a modern touch. Dual pane windows, New Roof & AC (2017), added insulation in the attic, and solar creates an energy efficient home. The 2-car garage has plenty of workspace with built-in cabinets for extra storage, plus a separate golf cart garage which could be used as a workshop. Sun City is a 55+ active adult community with a variety of social clubs, golf and recreation centers, shopping, restaurants and hospitals nearby.
West on Thunderbird; Right on Agua Fria Drive; Left on Nocturne Court ~ 2nd House on right side of the street
Dwelling Type: Residential
Subdivision: SUN CITY 11A
Year Built: 1970, County: N/A
West on Thunderbird; Right on Agua Fria Drive; Left on Nocturne Court ~ 2nd House on right side of the street
Listing is courtesy of My Home Group Real Estate
Sign in to your account to continue