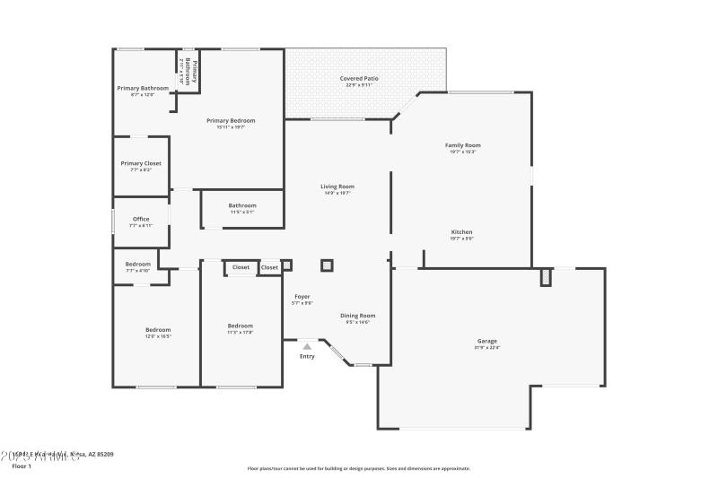
This move in ready home is situated on a Premium Golf Course Lot. It has a BRAND NEW ROOF NEWER HVAC SYSTEMS, OWNED SOLAR and SHUTTERS through out! It has everything you need to sit back and enjoy Arizona living! The beautiful backyard invites you to relax and take in the beautiful Arizona sunrises as you enjoy the golf course views. The home boasts of a large gourmet kitchen with tons of storage and counter space. This model has multiple family and living areas, so you can host a large crowd. The split bedroom floor plan, and ample sized guest rooms, makes it easy to have your family members and friends from the North come and visit. Priced to sell! You won't want to miss out on the beautiful home!
South on Springwood Blvd entering Sunland Springs Village, West on Kilarea Ave, all the way down...home on left side before Olivewood
Dwelling Type: Residential
Subdivision: SUNLAND SPRINGS VILLAGE UNIT ONE PHASE 2
Year Built: 2001, County: N/A
South on Springwood Blvd entering Sunland Springs Village, West on Kilarea Ave, all the way down...home on left side before Olivewood
Listing is courtesy of HomeSmart
Sign in to your account to continue