Welcome to 2435 E Evergreen St, a rare opportunity in one of Mesa's most established neighborhoods!
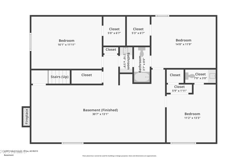
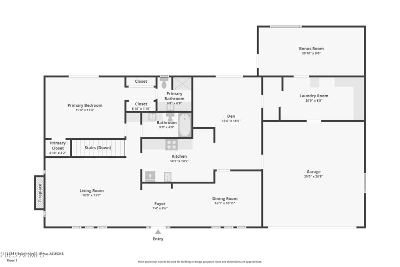
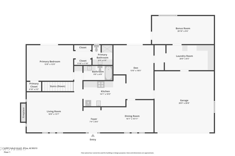
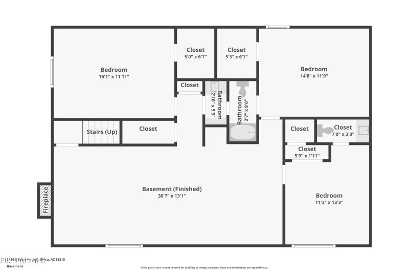
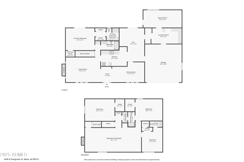
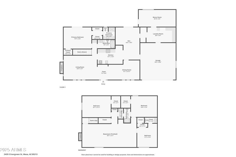
This 3,010 square foot home offers incredible space and flexibility, featuring 4 bedrooms, 4.5 bathrooms, multiple bonus rooms, and a basement.
With solid bones and a versatile floor plan, this property is the perfect blank canvas for renovation or customization.
Inside, the main level includes a primary suite with ensuite bath, a spacious living room with fireplace, dining room, kitchen, den, oversized laundry, and an additional bonus room. Downstairs, the finished basement expands the living space with three more bedrooms, two bathrooms, walk-in closets, and a massive living area with fireplace, ideal for a game room, theater, or guest suite.
With split bedrooms and multiple living areas, the layout is ideal for multigenerational living or income-producing potential.
Step outside to a large backyard with a covered patio, gazebo, and mature landscaping, all framed by block fencing for privacy.
Located near Field Elementary, Poston Junior High, and Mountain View High School, with quick access to shopping, dining, and the 202 freeway!
From Lindsay RD, turn West onto E Adobe ST, turn North onto N 26TH ST, turn West onto E Evergreen ST. House will be on your left.
Dwelling Type: Residential
Subdivision: MESA ESTATES 1
Year Built: 1978, County: N/A
From Lindsay RD, turn West onto E Adobe ST, turn North onto N 26TH ST, turn West onto E Evergreen ST. House will be on your left.
Listing is courtesy of West USA Realty
Sign in to your account to continue