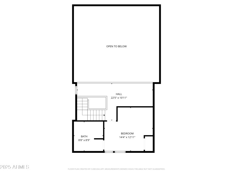
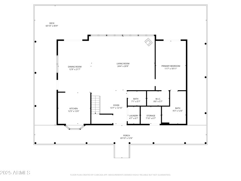
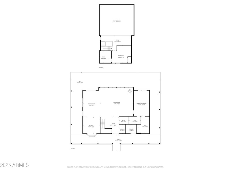
Set on 1 private acre with two additional lots included, this exceptional retreat offers breathtaking 360-degree views, a wraparound deck, and expansive bay windows that flood the home with natural light. The durable metal roof adds timeless appeal, while the interior features two oversized bedrooms, a versatile loft space, and a beautiful open kitchen designed for effortless hosting. Thoughtfully positioned to capture the surrounding scenery, the home blends comfort with elevated mountain living. One additional lot includes water and power available, while the other remains undeveloped, offering future potential. Mostly furnished (some items do not convey). A rare opportunity combining views, acreage, and flexibility.
Extra Lots- 206-08-028 + 206-08-029
Dwelling Type: Residential
Subdivision: Timberlake Pines #6 Lot 30
Year Built: 2007, County: N/A
Listing is courtesy of West USA Realty
Sign in to your account to continue