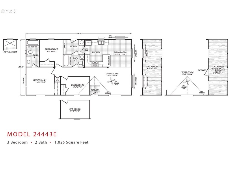
Free 2 months park rent for mutually accepted offer by December 31, 2025. Units #4 and #14 are also for sale. #3 and #4 fences going up and landscaping! ** Welcome to Evergreen Mobile Estates, where this charming brand new Fleetwood double-wide home awaits. Spanning 1,026 sq ft, it offers 3BD, 2BA, and an array of modern features. Admire the trendy laminate flooring in the main living areas and a kitchen equipped with sleek SS appliances: refrigerator, dishwasher, built-in microwave, and range/oven. Sunlit large windows add warmth and tons of natural light, while the vaulted primary suite impresses with a walk-in closet and private bathroom. Practicality meets style in the laundry/mud room and a large covered deck perfect for relaxation and watching all the passerby. The extra deep carport fits at least 2 cars, and there's a versatile shed for storage or a workshop. Effortless living is enhanced with an easy-care landscape. Enjoy included water, sewer, and garbage services as part of your space rent in this exceptionally convenient location, near shopping, dining, freeways and highways.
28th Street and 112th Avenue
Dwelling Type: Residential
Subdivision: N/A
Year Built: 2024, County: US
28th Street and 112th Avenue
Listing is courtesy of Kelly Right Real Estate Vancouver