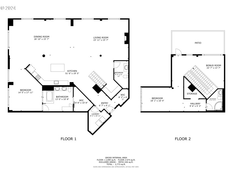
Designed by Daniel Hudson Burnham, the architect behind New York’s iconic Flatiron Building, the Marshall Wells Building is one of Portland’s most storied addresses.This northwest-facing corner penthouse loft captures sweeping views of Mt. Hood, the Steel, Broadway, and Marquam bridges, the downtown skyline, and the Moda Center, all framed by walls of windows and 14-foot ceilings. Exposed brick and original timber beams reflect the building’s industrial roots, while smart upgrades bring comfort and efficiency.A full HVAC overhaul in 2018 added a three-speed fan, programmable thermostat, refined ductwork, and improved crawl space access, cutting energy bills in half. The reimagined primary bath features a deep soaking tub, heated tile floors, a new vanity, and an expanded layout. In the kitchen, upgraded appliances and under-cabinet LED lighting enhance both form and function.Two parking spaces and an oversized storage unit (with direct garage access) add uncommon convenience in the Pearl. Just outside: the streetcar, galleries, parks, and some of the city’s best coffee.3D tour link and floorplan in photos.
NW 14th & NW Lovejoy
Dwelling Type: Residential
Subdivision: MARSHALL WELLS
Year Built: 1910, County: US
NW 14th & NW Lovejoy
Listing is courtesy of eXp Realty, LLC