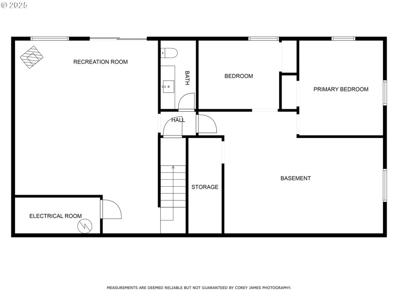
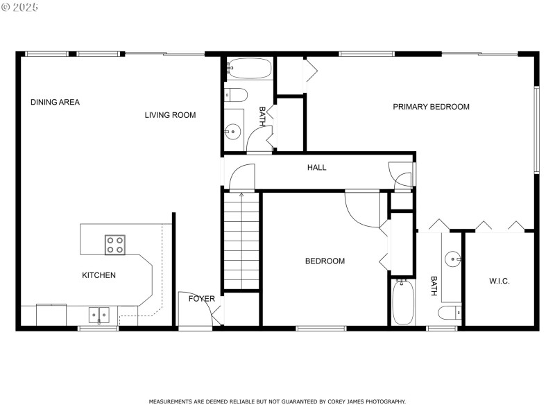
5 private acres, No CCR's, SIP built w/ over 2200 livable sf plus 800sf- 2 bedrooms and living roughed in, in the daylight basement! Main floor has an extra large primary bedroom with slider out to the deck, a perfect sized 2nd bedroom, main hall bath w/ enclosed laundry, open kitchen/living w/walkout to the deck & attached 670sf garage w/ workspace. Living/rec room downstairs has a new wood stove, a finished 1/2 bath & its own entry/exit onto the patio. 50yr. metal roof, vinyl siding, aluminum deck, private well and septic that has been inspected and pumped! Home has an abundance of space and storage and even more potential! Besides, imagine staring out at the Columbia River every day! Property can be divided or cleared for max useage!
No drivebys, private road, Use GPS. Follow red arrows
Dwelling Type: Residential
Subdivision: Green Mountain
Year Built: 1987, County: US
No drivebys, private road, Use GPS. Follow red arrows
Listing is courtesy of Realty ONE Group Pacifica