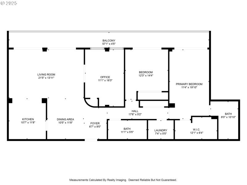
When the sellers decided to downsize, they looked at many smaller homes. Then I showed them this condo. The moment they walked in, they knew this would be their next home. They remodeled and made the living area more open to accommodate their everyday lives but also dinner for 25. Enjoying morning coffee on their spacious, full-length balcony with a lovely view of downtown and trees is one of their favorite pastimes, shielded from the world but just steps away from the entrance to Washington Park. They love waking up in the morning to the soothing ever changing view as well as being close to restaurants, groceries, freeways and shopping on 23rd. Everyone in the community makes you feel welcome and safe, a place where you instantly feel like you belong. The pool is a wonderful gathering space. The laundry room accommodates a full-size washer and dryer as well as a freezer. The assessment for installing all new plumbing, common area carpeting and painting will be paid by the seller at closing.
Vista, W on Park Pl
Dwelling Type: Residential
Subdivision: WASHINGTON PARK
Year Built: 1964, County: US
Vista, W on Park Pl
Listing is courtesy of Cascade Hasson Sotheby's International Realty
Sign in to your account to continue