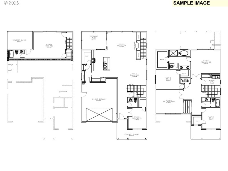
This daylight basement home features generous living space throughout plus stunning territorial views from upstairs. Appointed with mission style alder cabinetry, a gourmet kitchen with slab quartz countertops and undermount sinks, a walk-in pantry off the owner's entry and stainless steel Whirlpool appliances, including 5 burner gas cooktop w/hood vent, built-in double-ovens, microwave and SS tub dishwasher. A large dining area and a den/5th bed on the main level. Upstairs you will enjoy an expansive primary suite with generous walk-in closet and adjoining bath with all tile shower and soaking tub plus 2 additional bedrooms and a large bonus/4th bed. Fully landscaped front and rear yard. Fenced back yard with gate. Seek solitude or fun in the daylight basement featuring a rec room and full bath. Central air conditioning, tankless hot water heater and built with energy saving features! Builder incentive available!
SW WOODHUE ST & SW EVERGLADE AVE
Dwelling Type: Residential
Subdivision: RIVER TERRACE CROSSING
Year Built: 2025, County: US
SW WOODHUE ST & SW EVERGLADE AVE
Listing is courtesy of Stone Bridge Realty, Inc