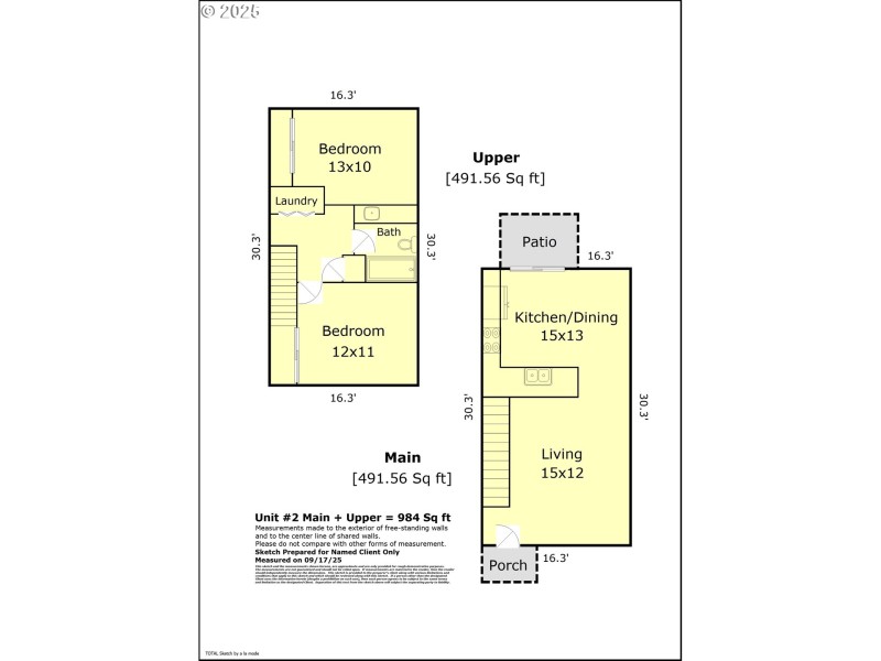
Situated along SE Portland’s trendy Woodstock Blvd, this rare four-plex offers four turn-key units in one of the city’s most desirable rental neighborhoods — an incredible opportunity for either an owner-occupant or investor to secure a low-maintenance, income-producing property with enduring appeal. The triplex, built in 2002, is comprised of three townhouse-style residences, each with 2 bedrooms, 1 bath, open floor plans, private patios, in-unit washer and dryer hookups, and off-street parking. The adjoining 1919 bungalow showcases classic Portland character enhanced by thoughtful updates in 2019 and the addition of a new mini-split HVAC system in 2024, ensuring year-round comfort and efficiency. All units enjoy outdoor space, parking, and easy access to the best of Woodstock — steps from local cafés, shops, breweries, and parks, with Reed College just 1.5 miles away, a Bike Score of 96, and five bus stops within a quarter mile. Built to last and designed for low-maintenance ownership, this well-kept property delivers immediate rental strength, long-term upside, and the flexibility to suit both dedicated investors and those seeking a home with supplemental income. EACH UNIT IS ON A SEPARATE TAX LOT.
SE McLoughlin Blvd to SE Bybee Blvd to SE 28th Ave to SE Woodstock Blvd
Dwelling Type: MultiFamily
Subdivision: WOODSTOCK
Year Built: 2002, County: US
SE McLoughlin Blvd to SE Bybee Blvd to SE 28th Ave to SE Woodstock Blvd
Listing is courtesy of Cascade Hasson Sotheby's International Realty