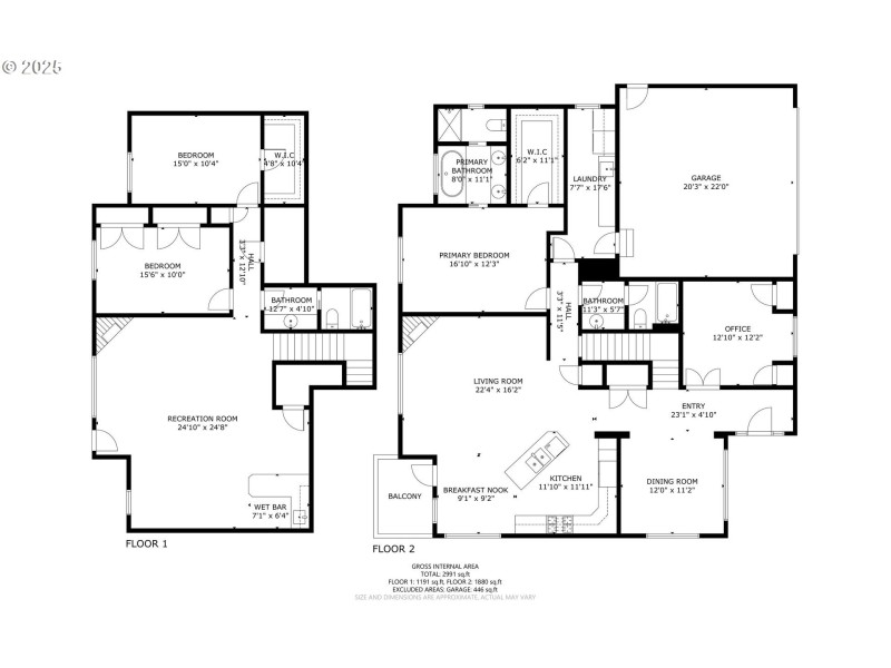
Nestled in the desirable Deer Glen neighborhood and offering nearly 3,000 square feet of living space, this spacious 3-bedroom, 3-bath home with a main-level office—easily used as a fourth bedroom—provides comfort, flexibility, and a serene natural setting. The main level features mostly hardwood floors and high ceilings. A seamless great room layout connects the living room, kitchen, and dining area into one inviting space. The living room is anchored by a cozy fireplace and a large picture window that frames tranquil views of the surrounding greenspace. The kitchen showcases knotty-pine cabinetry, granite countertops, stainless steel appliances, and a large island with sink. The dining area leads directly to a covered porch—perfect for enjoying a morning cup of coffee while listening to the sounds of nature and the nearby creek. A formal dining room with hardwood floors offers additional space for entertaining or hosting holiday meals. The main-level primary suite is a peaceful retreat, complete with a dual-sink vanity, jetted tub, walk-in shower, and a spacious walk-in closet. A utility room is also conveniently located on the main level. The lower level features a large family room with high ceilings, a second fireplace, wet bar, full bathroom, and two generously sized bedrooms. A private exterior entry leads to a covered patio and yard, making the space ideal for guests, extended family, or multi-generational living. With greenspace on three sides and a creek running alongside the property, outdoor living is private and picturesque. Located close to hiking trails and just a short drive to Mt. Hood’s year-round recreation, this home blends rustic charm with modern convenience in a truly exceptional setting.
SE Regner Rd./east on 29th St.
Dwelling Type: Residential
Subdivision: GRESHAM BUTTE
Year Built: 2007, County: US
SE Regner Rd./east on 29th St.
Listing is courtesy of Oregon First