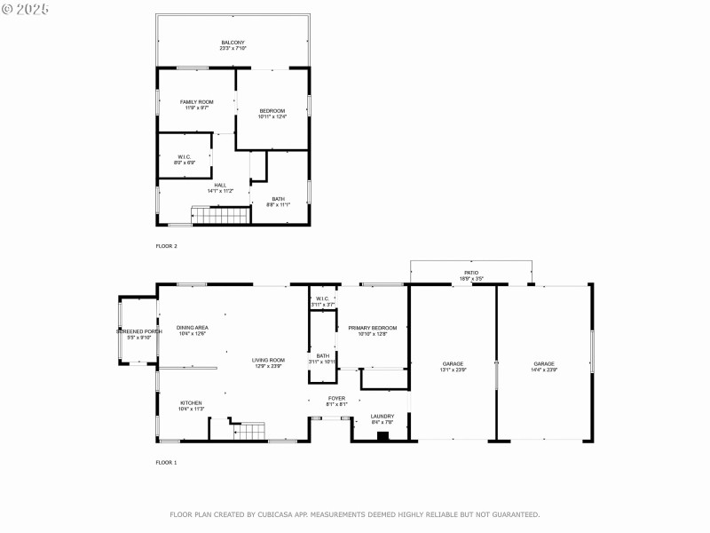
Property will have a NEW ROOF end OCT. This 2 bed/2 bath RIVER ACCESS & BONUS room that could be a 3rd bedroom/office or project room and is MOVE IN READY after EXTENSIVE rebuild/remodel/updates in 2006 - including the addition of the 2nd floor. Further updates in 2022/2023. Inside, you will find engineered hardwood floors & newly painted rooms. Upper level you have a bedroom with French doors leading out to a (2023) large Trex balcony giving you a view of the river and Mount Hood. A bonus room off master bedroom. The family bathroom has a jetted tub, shower plus his & hers (2022)vanity with quartz countertop. Main level has 2nd bedroom & the 2nd bathroom. The kitchen has beautiful quartz countertops & a good sized dining area with a sun room to the side. The SimpliSafe security system will stay with the property. Not 1 but 2 garages attached to the property. One of the garages has a front and a back roller door plus side door access (2023). There is space for RV parking alongside garages. A generator hook up is installed. The siding was professionally painted (2022). This home has French doors & plenty of windows to provide natural light throughout. Tankless w/heater(2022) and kitchen water heater (2025). All ceiling fans fitted 2022. LOCATION is always important. Backs onto the river? YES. A fabulous community? YES. Close to shops like Camas, Washougal, 192nd, Vancouver, PDX? YES. Xfinity internet. 0.46 acres of irrigated land with beautiful lawns, established fruit trees (detailed on each tree) & shrubs, a fire pit for those cooler evenings & an all weather covered patio area for shade. All areas are sympathetically fenced allowing full views & safe access if you have a young family, to the LITTLE WASHOUGAL RIVER with a designated area to sit & relax. Enjoy watching Steelhead & Cutthroat Trout, Coho & Chinook Salmon spawning, deer, the naughty beaver activity & of course the full range of birds (Handout provided on viewings). Viewing strictly by appoint
On Washougal river Rd, West onto Blair Rd. From SR500 East onto ne 19TH then right onto Blair
Dwelling Type: Residential
Subdivision: N/A
Year Built: 1984, County: US
On Washougal river Rd, West onto Blair Rd. From SR500 East onto ne 19TH then right onto Blair
Listing is courtesy of MORE Realty, Inc