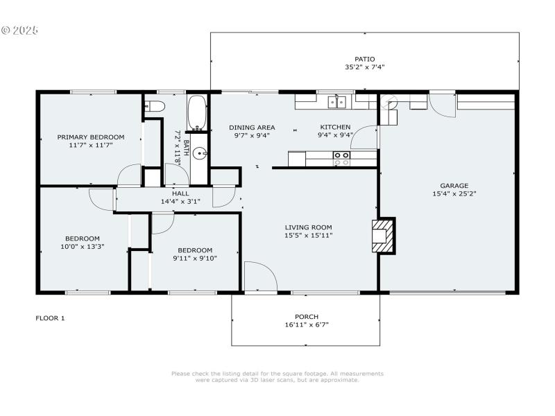
Back on market due to sale fall through! A gardener’s dream with ADU potential, this charming single-level mid-century modern home feels warm and inviting the moment you step inside. The spacious living room, highlighted by a cozy pellet stove, creates the perfect gathering place. The thoughtfully designed floor plan includes a roomy galley kitchen with plenty of counter space, ideal for cooking together, plus an adjacent dining area with patio access.The home sits on a sunny .22-acre lot that is truly a gardener’s paradise. The expansive fenced backyard features raised garden beds, grapevines, blueberries, marionberries, herbs, and more, with plenty of room left for pets, play, or even expansion. With its excellent layout, this property offers a prime location in the backyard for an ADU, shop, or mother-in-law quarters, giving buyers a rare opportunity to create multi-generational living space, generate rental income, or design the ultimate hobby workshop.Inside, you’ll appreciate the extra-large bathroom with generous storage, as well as built-in linen shelving and drawers conveniently located just outside. The wide roof overhang not only complements the home’s classic style but also makes maintenance a breeze. An extra-deep 2-car garage provides abundant space for vehicles, storage, or a workshop.Located on a relatively quiet street, this well-cared-for property is close to shopping, restaurants, and entertainment, while offering a friendly neighborhood atmosphere. Whether you’re looking for a place to relax, entertain, garden, or expand with future possibilities, this home blends comfort, style, and opportunity.
South on Chambers, West on 22nd to Grant
Dwelling Type: Residential
Subdivision: N/A
Year Built: 1962, County: US
South on Chambers, West on 22nd to Grant
Listing is courtesy of United Real Estate Properties
Sign in to your account to continue