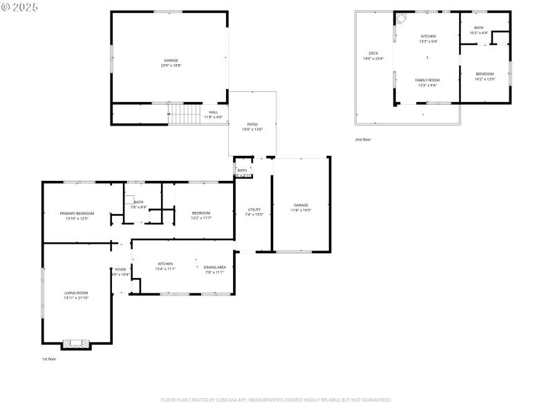
Rare Brookings opportunity offering two well-maintained dwellings on one property in a quiet, desirable neighborhood close to town. The primary residence is a single-level 2 bedroom, 1.5 bath home with an attached single-car garage, currently operating successfully as an Airbnb. Thoughtfully maintained, this home features washer/dryer hookups, a propane fireplace, and an efficient, comfortable layout ideal for full-time living or continued short-term rental use.Adjacent to the main home is a 1 bedroom, 1 bath apartment located above a 2-car garage, offering excellent separation and privacy. Enjoy a peek-a-boo ocean view, especially from the apartment’s deck. The apartment includes washer/dryer hookups located in the garage, a propane fireplace, and a kitchenette with sink, counters, and cabinetry (no range), making it ideal for guests, extended family, or supplemental rental income.Both dwellings are very well cared for and should pass most financing. Property is offered at $550,000 for both units combined and is expected to be sold furnished, making this a true turnkey opportunity. Whether you’re looking for a primary residence with income, a vacation rental setup, or a multi-generational living option, this property checks the boxes. Quiet setting, close to town, and full of potential.
Hwy 101 to E. Hoffeldt, Left on Chapman, Home on corner of Chapman and Terrace St.
Dwelling Type: MultiFamily
Subdivision: N/A
Year Built: 1968, County: US
Hwy 101 to E. Hoffeldt, Left on Chapman, Home on corner of Chapman and Terrace St.
Listing is courtesy of eXp Realty, LLC
Sign in to your account to continue